この物件の特徴
この物件の設備
★独立洗面台★温水洗浄便座★
★☆★建物の特徴★☆★
エレベーター/防犯カメラ/ゴミ置き場/インターネット無料
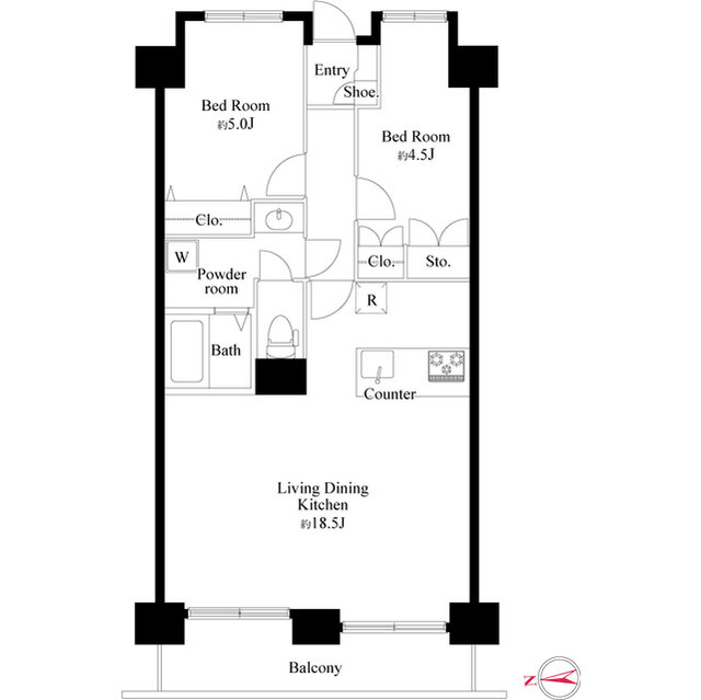
★☆★お部屋の特徴★☆★
システムキッチン/バス・トイレ別/独立洗面台/脱衣所/洗濯機室内/浴室乾燥機/温水洗浄便座/クローゼット/シューズボックス/照明/フローリング/バルコニー/エアコン/モニター付きインターホン/24時間換気システム
(※上記は部屋により異なる場合がございます)
★☆★近くのお店★☆★
ベルクス190m/ファミリーマート550m
★☆★近くの道路★☆★
諏訪道
千葉県柏市豊四季エリアに位置するマンション
「クレセントコートおおたかの森」は、住環境と利便性のバランスに優れた賃貸レジデンスです。
最寄りの東武野田線「豊四季」駅から徒歩7分。都心へのアクセスも良好でありながら、周辺は落ち着いた住宅街が広がり、日々の暮らしに穏やかさをもたらしてくれます。近隣にはスーパーや生活利便施設も揃っており、単身の方からカップルまで快適にお住まいいただける立地です。
建物にはエレベーターを完備し、重い荷物がある日や雨の日の移動もスムーズ。
また、防犯カメラ設置により、セキュリティ面にも配慮されており、安心して生活できる環境が整っています。敷地内駐車場も備えているため、お車をお持ちの方にもおすすめです。
室内は、バス・トイレ別をはじめ、独立洗面台・追い焚き機能付きバス・温水洗浄便座など、日常の快適さを高める設備が充実。水回りの使い勝手も良く、忙しい毎日でもストレスを感じにくい設計となっています。
さらに本物件は、
キャバクラ・ナイトワーク・夜職に従事されている方の入居審査にも柔軟に対応可能。
収入面や働き方に不安を感じやすい方でも、安心してご相談いただける物件です。
「住みやすさ」「安心感」「審査面の柔軟さ」を兼ね備えた
クレセントコートおおたかの森で、新しい生活を始めてみませんか。
周辺地図
物件概要
| 物件種別 | 賃貸マンション |
|---|---|
| 間取り・専有面積 | 2LDK / 64.98m²~ |
| 築年月 | 1990年02月 |
| 規模・構造 | 鉄筋コンクリート造 7階建て |
| 駐車場 | |
| 設備 | オートロック , 光ファイバー対応 , 追焚き機能付 , 浴室換気乾燥機 , ウォシュレット , 独立洗面台 , 脱衣室 , バストイレ別 |
| 特徴 | 二人入居可 , 保証人不要 , インターネット無料 , 1DK以上 |
| 取引態様 | 媒介 |
| 自社物件番号 | C-8468 |
- ※当サイトは、建物に関するサイトとなっております。
条件等は、お部屋ごとに異なる場合がございますので、お部屋の事に関しては、必ず募集条件を直接ご確認ください - ※分譲賃貸マンションの場合、お部屋によって家賃・管理費・敷金・礼金など賃貸借契約に関する設定が様々です。各所有者様によって、設備・仕様・内装などが変更されている場合もございます。
- ※ペット飼育やSOHO利用の可否に関しては、建物の管理規約で可能になっていても、お部屋の所有者様によって禁止の場合もございますのでご注意下さい。
- 詳細はお電話、メール、LINEにてスタッフまでご相談下さい。
周辺環境
クレセントコートおおたかの森のお問い合わせ
最新の空室情報・詳細情報などお気軽にお問い合わせください。
- お問い合わせは24時間OK!
- 03-6279-2032
- 営業時間:10:00~20:00































