この物件の特徴
この物件の設備
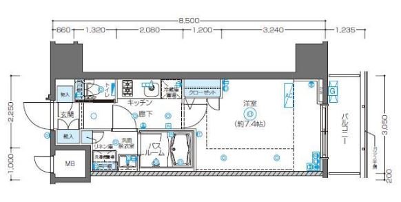
☆デザイナーズ☆追い焚き機能☆
★☆★建物の特徴★☆★
モニター付きオートロック/宅配ボックス/エレベーター/防犯カメラ/ディンプルキー/ゴミ置き場/駐輪場
★☆★お部屋の特徴★☆★
システムキッチン/バス・トイレ別/独立洗面台/脱衣所/追い焚き機能/洗濯機室内/浴室乾燥機/温水洗浄便座/クローゼット/シューズボックス/照明/フローリング/バルコニー/エアコン/モニター付きインターホン/24時間換気システム
(※上記は部屋により異なる場合がございます)
★☆★近くのお店★☆★
ファミリーマート50m/すき家80m/ひかり薬局100m
★☆★近くの道路★☆★
明治通り
人気エリア新宿区大久保1丁目にあるペット可高級分譲賃貸マンション『ZOOM東新宿』です。
東京メトロ副都心線・都営大江戸線「東新宿駅」徒歩1分の好立地♪
近隣にはスーパー三徳、TSUTAYA、セブンイレブン、ローソン、ドラッグストアなどがあり買い物にも便利です。
バストイレ別はもちろん、雨の日の洗濯後にも役立つ浴室乾燥機や、いつでも温かいお湯につかれる追い焚き機能など設備も充実です。オートロック、TVモニター付インターフォン、防犯カメラなど防犯面でもしっかりと安心した生活を守ります。
周辺地図
物件概要
| 物件種別 | 賃貸マンション |
|---|---|
| 間取り・専有面積 | 1K / 25.59m²~ |
| 築年月 | 2014年01月 |
| 規模・構造 | 鉄筋コンクリート造 13階建て |
| 駐車場 | |
| 設備 | オートロック , 光ファイバー対応 , 宅配ボックス , 追焚き機能付 , 浴室換気乾燥機 , ウォシュレット , 玄関ダブルロック , ディンプルキー , 独立洗面台 , 脱衣室 , バストイレ別 |
| 特徴 | デザイナーズ , 分譲賃貸 , 保証人不要 , レジデンス |
| 取引態様 | 媒介 |
| 自社物件番号 | C-7135 |
- ※当サイトは、建物に関するサイトとなっております。
条件等は、お部屋ごとに異なる場合がございますので、お部屋の事に関しては、必ず募集条件を直接ご確認ください - ※分譲賃貸マンションの場合、お部屋によって家賃・管理費・敷金・礼金など賃貸借契約に関する設定が様々です。各所有者様によって、設備・仕様・内装などが変更されている場合もございます。
- ※ペット飼育やSOHO利用の可否に関しては、建物の管理規約で可能になっていても、お部屋の所有者様によって禁止の場合もございますのでご注意下さい。
- 詳細はお電話、メール、LINEにてスタッフまでご相談下さい。
周辺環境
ズーム東新宿のお問い合わせ
最新の空室情報・詳細情報などお気軽にお問い合わせください。
- お問い合わせは24時間OK!
- 03-6279-2032
- 営業時間:10:00~20:00































