この物件の特徴
この物件の設備
★水商売OK★宅配ボックス★
★☆★建物の特徴★☆★
モニター付きオートロック/宅配ボックス/駐輪場/エレベーター/敷地内ゴミ置場/防犯カメラ/BS/CS/光ファイバー/給湯
★☆★お部屋の特徴★☆★
システムキッチン/バス・トイレ別/浴室換気乾燥暖房機/フローリング/エアコン/室内洗濯機置き場/シューズボックス/2口コンロ/バルコニー/温水洗浄便座/独立洗面台/カラーモニター付きインターホン/ダブルロックキー/クローゼット/角部屋
(※上記は部屋により異なる場合がございます)
★☆★近くのお店★☆★
ファミリーマート250m/ファミリーマート350m/ローソン400m
★☆★近くの道路★☆★
甲州街道
初台を代表する高級賃貸マンション☆
2006年11月に『カスタリア初台』が誕生しました。
「初台」徒歩4分の抜群の立地です。
徒歩圏内にオペラシティがあるためスーパーマーケットの『成城石井』や飲食店も多数はいっており、食品から日用品まで普段のお買い物に困ることはありません。
メガターミナル「新宿」まで一駅のため、休日も遠出する必要なく都心での暮らしを満喫いただけます。
オートロックや宅配ボックス、TVモニターホン、防犯カメラ等も設置されているのでセキュリティも万全で安心して過ごせるようにしています。
さらに24時間ゴミ出し可能置き場があるので毎日のゴミ出しも可能です☆
周辺地図
物件概要
| 物件種別 | 賃貸マンション |
|---|---|
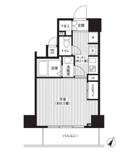
| 間取り・専有面積 | 1K / 28.89m²~ |
| 築年月 | 2006年11月 |
| 規模・構造 | 鉄筋コンクリート造 14階建て |
| 駐車場 | |
| 設備 | オートロック , 光ファイバー対応 , 宅配ボックス , 浴室換気乾燥機 , ウォシュレット , 玄関ダブルロック , ディンプルキー , 独立洗面台 , 脱衣室 , バストイレ別 |
| 特徴 | 二人入居可 , 保証人不要 , インターネット無料 , レジデンス |
| 取引態様 | 媒介 |
| 自社物件番号 | C-6316 |
- ※当サイトは、建物に関するサイトとなっております。
条件等は、お部屋ごとに異なる場合がございますので、お部屋の事に関しては、必ず募集条件を直接ご確認ください - ※分譲賃貸マンションの場合、お部屋によって家賃・管理費・敷金・礼金など賃貸借契約に関する設定が様々です。各所有者様によって、設備・仕様・内装などが変更されている場合もございます。
- ※ペット飼育やSOHO利用の可否に関しては、建物の管理規約で可能になっていても、お部屋の所有者様によって禁止の場合もございますのでご注意下さい。
- 詳細はお電話、メール、LINEにてスタッフまでご相談下さい。
周辺環境
カスタリア初台のお問い合わせ
最新の空室情報・詳細情報などお気軽にお問い合わせください。
- お問い合わせは24時間OK!
- 03-6279-2032
- 営業時間:10:00~20:00







































