この物件の特徴
この物件の設備
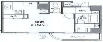
☆ペット可☆オートロック☆独立洗面台☆
★☆★建物の特徴★☆★
オートロック/宅配ボックス/CATV/エレベーター/外観タイル張り/防犯カメラ/駐輪場/駅近
★☆★お部屋の特徴★☆★
システムキッチン/バス・トイレ別/浴室換気乾燥暖房機/フローリング/エアコン/室内洗濯機置き場/シューズボックス/3口以上コンロ/バルコニー/温水洗浄便座/独立洗面台/カラーモニター付きインターホン/ペット可/小型犬可/猫可/人感センサー付き照明/2面バルコニー/インターネット/追い焚き
(※上記は部屋により異なる場合がございます)
★☆★近くのお店★☆★
郵便局40m/ファミリーマート100m
★☆★近くの道路★☆★
目白通り
目白を代表する高級賃貸マンション☆
2002年7月に『フイユ・ドール目白』が誕生しました。
「目白」徒歩4分の抜群の立地です。
池袋も歌舞伎町もアクセスしやすいです♪
徒歩圏内にスーパーマーケットの『ピーコックストア』や飲食店も多数あり、食品から日用品まで普段のお買い物に困ることはありません。
休日も遠出する必要なく都心での暮らしを満喫いただけます。
オートロックや、TVモニターホン、防犯カメラ等も設置されているのでセキュリティも万全で安心して過ごせるようにしています。
さらに24時間ゴミ出し可能置き場があるので毎日のゴミ出しも可能です☆
周辺地図
物件概要
| 物件種別 | 賃貸マンション |
|---|---|
| 間取り・専有面積 | 1K / 32.3m²~ |
| 築年月 | 2002年07月 |
| 規模・構造 | 鉄筋コンクリート造 11階建て |
| 駐車場 | |
| 設備 | オートロック , 宅配ボックス , 追焚き機能付 , ウォシュレット , 独立洗面台 , 脱衣室 , バストイレ別 |
| 特徴 | 敷金・礼金0 , ペット相談可 , フリーレント , 保証人不要 |
| 取引態様 | 媒介 |
| 自社物件番号 | MB-0092 |
- ※当サイトは、建物に関するサイトとなっております。
条件等は、お部屋ごとに異なる場合がございますので、お部屋の事に関しては、必ず募集条件を直接ご確認ください - ※分譲賃貸マンションの場合、お部屋によって家賃・管理費・敷金・礼金など賃貸借契約に関する設定が様々です。各所有者様によって、設備・仕様・内装などが変更されている場合もございます。
- ※ペット飼育やSOHO利用の可否に関しては、建物の管理規約で可能になっていても、お部屋の所有者様によって禁止の場合もございますのでご注意下さい。
- 詳細はお電話、メール、LINEにてスタッフまでご相談下さい。
周辺環境
フイユ・ドール目白のお問い合わせ
最新の空室情報・詳細情報などお気軽にお問い合わせください。
- お問い合わせは24時間OK!
- 03-6279-2032
- 営業時間:10:00~20:00






























