この物件の特徴
この物件の設備
★歌舞伎町徒歩圏内★複数路線利用可能★
★☆★建物の特徴★☆★
モニター付きオートロック/宅配ボックス/光ファイバー/CS/BS/CATV/エレベーター/防犯カメラ/ゴミ置き場/分譲
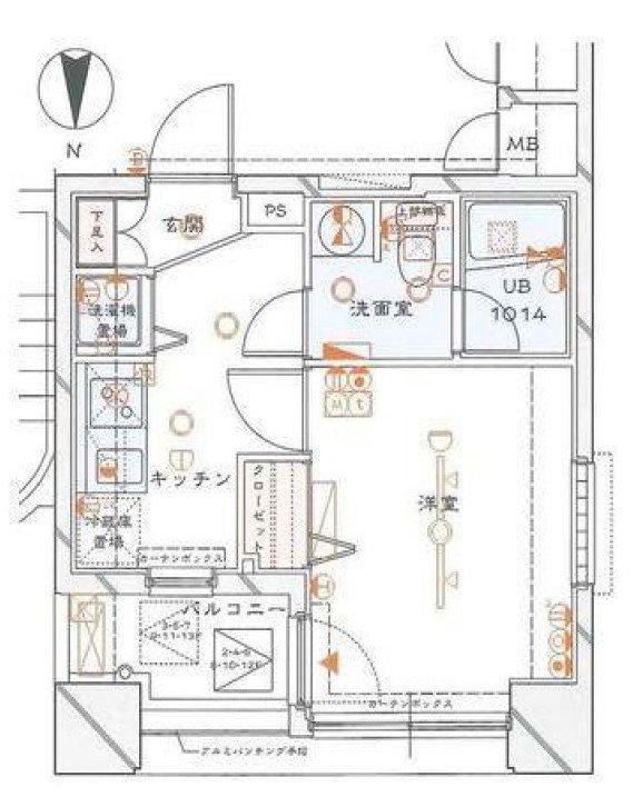
★☆★お部屋の特徴★☆★
システムキッチン/バス・トイレ別/洗濯機室内/浴室乾燥機/温水洗浄便座/クローゼット/シューズボックス/照明/フローリング/バルコニー/エアコン/モニター付きインターホン/24時間換気システム
(※上記は部屋により異なる場合がございます)
★☆★近くのお店★☆★
ファミリーマート180m/業務スーパー190m
★☆★近くの道路★☆★
抜弁天通り
閑静な住宅街にありながら歌舞伎町までのアクセスも良い若松河田エリアにある『ブライズ東新宿』
都営大江戸線若松河田駅徒歩5分、東京メトロ副都心線東新宿駅徒歩7分と電車でのアクセスが抜群♪
職安通りにつながる大通りに面しているためタクシーもつかまえやすいです♪
歌舞伎町にお勤めの水商売の方にはオススメです(≧▽≦)
また近くにはスーパーライフもあり普段の生活のお買い物にも困りません♪
コンビニやファミレス、ドラッグストアも近くにあり住環境は抜群です!
浴室換気乾燥機、ウォシュレット、エレベーター、宅配ボックス等、分譲賃貸マンションならではのうれしい充実の設備♪
周辺地図
360°パノラマ
物件概要
| 物件種別 | 賃貸マンション |
|---|---|
| 間取り・専有面積 | 1K / 21.46m²~ |
| 築年月 | 2005年04月 |
| 規模・構造 | 鉄筋コンクリート造 13階建て |
| 駐車場 | |
| 設備 | オートロック , 光ファイバー対応 , 宅配ボックス , 浴室換気乾燥機 , ウォシュレット , 脱衣室 , バストイレ別 |
| 特徴 | 敷金・礼金0 , 分譲賃貸 , 保証人不要 |
| 取引態様 | 媒介 |
| 自社物件番号 | MC-730 |
- ※当サイトは、建物に関するサイトとなっております。
条件等は、お部屋ごとに異なる場合がございますので、お部屋の事に関しては、必ず募集条件を直接ご確認ください - ※分譲賃貸マンションの場合、お部屋によって家賃・管理費・敷金・礼金など賃貸借契約に関する設定が様々です。各所有者様によって、設備・仕様・内装などが変更されている場合もございます。
- ※ペット飼育やSOHO利用の可否に関しては、建物の管理規約で可能になっていても、お部屋の所有者様によって禁止の場合もございますのでご注意下さい。
- 詳細はお電話、メール、LINEにてスタッフまでご相談下さい。
周辺環境
ブライズ東新宿のお問い合わせ
最新の空室情報・詳細情報などお気軽にお問い合わせください。
- お問い合わせは24時間OK!
- 03-6279-2032
- 営業時間:10:00~20:00



































