この物件の特徴
この物件の設備
★ペット可★保証人不要★
★☆★建物の特徴★☆★
モニター付きオートロック/都市ガス/下水道/カードキー/木造/デザイナーズ
★☆★お部屋の特徴★☆★
システムキッチン/ガスコンロ口/ガス給湯器/バス・トイレ別/シャワー/温水洗浄便座/独立洗面台/室内洗濯機置場/浴室乾燥機/フローリング/収納スペース/クローゼット/モニター付きインターホン
(※上記は部屋により異なる場合がございます)
★☆★近くのお店★☆★
コモディイイダ170m/ローソン270m
★☆★近くの道路★☆★
朝日通り
中野区にある人気ペット可賃貸マンション
「solarto(ソラート)」のご紹介♪
最寄りの【西部新宿線】沼袋駅なので生活環境ともに高い利便性を誇ります。
周辺にはスーパー・薬局・コンビニなど立ち並び周辺環境に困らない住環境をお約束致します。
設備には嬉しい、独立洗面台・浴室乾燥・洗浄機付便座・システムキッチンなどの水回り。
沢山収納できるクローゼットからシューズBOX。
宅配BOXやカラーTVインターホンなど納得のいく設備となっています。
女性にも安心セキュリティ面に優れたマンション。
オートロック、カードキー、防犯カメラも設置されており防犯性の高い造りとなっています。
周辺地図
物件概要
| 物件種別 | 賃貸マンション |
|---|---|
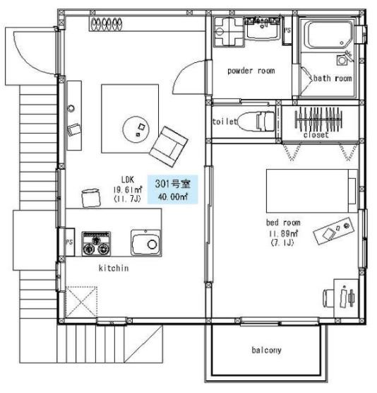
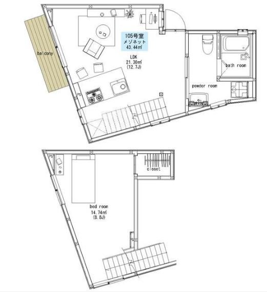
| 間取り・専有面積 | 1LDK / 40m²~ |
| 築年月 | 2014年04月 |
| 規模・構造 | 木造 3階建て |
| 駐車場 | |
| 設備 | オートロック , 追焚き機能付 , 浴室換気乾燥機 , ウォシュレット , シャンプードレッサー , 玄関ダブルロック , 独立洗面台 , 脱衣室 , バストイレ別 |
| 特徴 | ペット相談可 , 保証人不要 |
| 取引態様 | 媒介 |
| 自社物件番号 | MB-0149 |
- ※当サイトは、建物に関するサイトとなっております。
条件等は、お部屋ごとに異なる場合がございますので、お部屋の事に関しては、必ず募集条件を直接ご確認ください - ※分譲賃貸マンションの場合、お部屋によって家賃・管理費・敷金・礼金など賃貸借契約に関する設定が様々です。各所有者様によって、設備・仕様・内装などが変更されている場合もございます。
- ※ペット飼育やSOHO利用の可否に関しては、建物の管理規約で可能になっていても、お部屋の所有者様によって禁止の場合もございますのでご注意下さい。
- 詳細はお電話、メール、LINEにてスタッフまでご相談下さい。
周辺環境
ソラートのお問い合わせ
最新の空室情報・詳細情報などお気軽にお問い合わせください。
- お問い合わせは24時間OK!
- 03-6279-2032
- 営業時間:10:00~20:00





































