この物件の特徴
この物件の設備
☆ペット可☆オートロック☆独立洗面台☆
★☆★建物の特徴★☆★
モニター付きオートロック/宅配ボックス/エレベーター/防犯カメラ/ディンプルキー/光ファイバー/CS/BS/敷地内ゴミ置き場/分譲
★☆★お部屋の特徴★☆★
ペット可/システムキッチン/バス・トイレ別/独立洗面化粧台/脱衣所/洗濯機室内/浴室乾燥機/温水洗浄便座/クローゼット/シューズボックス/照明/フローリング/バルコニー/エアコン/モニター付きインターホン/24時間換気システム/インターネット無料
(※上記は部屋により異なる場合がございます)
★☆★近くのお店★☆★
ローソン180m/カクヤス120m
★☆★近くの道路★☆★
明治通り
高級住宅街白金に建つ分譲賃貸マンション「メインステージ白金Ⅲ」
ゆったりとした1Kを中心としたルームプランで一人暮らしの方にオススメです!
駅周辺にはスーパーや、コンビニがあるので普段のお買い物も困りません♪
ペット飼育可能で、敷地内にペット足洗い場が付いているのも嬉しいポイント★
モニター付きオートロック、防犯カメラに加え、24時間セキュリティシステム搭載で防犯性の高い造りとなっております!
更に全室インターネット無料でお家時間を快適に過ごせます♪
周辺地図
物件概要
| 物件種別 | 賃貸マンション |
|---|---|
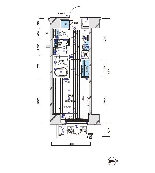
| 間取り・専有面積 | 1K / 25.73m²~ |
| 築年月 | 2017年12月 |
| 規模・構造 | 鉄筋コンクリート造 10階建て |
| 駐車場 | |
| 設備 | オートロック , 光ファイバー対応 , 宅配ボックス , 浴室換気乾燥機 , ウォシュレット , シャンプードレッサー , ディンプルキー , 独立洗面台 , 脱衣室 , バストイレ別 |
| 特徴 | 敷金・礼金0 , ペット相談可 , 分譲賃貸 , 保証人不要 , インターネット無料 , レジデンス |
| 取引態様 | 媒介 |
| 自社物件番号 | MA-884 |
- ※当サイトは、建物に関するサイトとなっております。
条件等は、お部屋ごとに異なる場合がございますので、お部屋の事に関しては、必ず募集条件を直接ご確認ください - ※分譲賃貸マンションの場合、お部屋によって家賃・管理費・敷金・礼金など賃貸借契約に関する設定が様々です。各所有者様によって、設備・仕様・内装などが変更されている場合もございます。
- ※ペット飼育やSOHO利用の可否に関しては、建物の管理規約で可能になっていても、お部屋の所有者様によって禁止の場合もございますのでご注意下さい。
- 詳細はお電話、メール、LINEにてスタッフまでご相談下さい。
周辺環境
メインステージ白金Ⅲのお問い合わせ
最新の空室情報・詳細情報などお気軽にお問い合わせください。
- お問い合わせは24時間OK!
- 03-6279-2032
- 営業時間:10:00~20:00




































