この物件の特徴
この物件の設備
☆分譲☆ペット可☆デザイナーズ☆
★☆★建物の特徴★☆★
分譲/デザイナーズ/モニター付きオートロック/宅配ボックス/エレベーター/防犯カメラ/ディンプルキー/ゴミ置き場/CS/BS/CATV/光ファイバー/駐輪場
★☆★お部屋の特徴★☆★
システムキッチン/バス・トイレ別/独立洗面台/脱衣所/洗濯機室内/浴室乾燥機/温水洗浄便座/クローゼット/シューズボックス/照明/フローリング/バルコニー/モニター付きインターホン/24時間換気システム
(※上記は部屋により異なる場合がございます)
★☆★近くのお店★☆★
ナチュラルローソン240m/マルエツプチ250m/ファミリーマート350m
★☆★近くの道路★☆★
旧山手通り
渋谷区神泉町にある人気のペット可分譲マンション「メイクスデザイン渋谷神泉」♪
最寄りは【京王井の頭線】神泉駅【JR山手線】渋谷駅も徒歩圏内なので生活環境ともに高い利便性を誇ります。
設備には嬉しい、独立洗面台・浴室乾燥・洗浄機付便座・システムキッチンなどの水回り。
沢山収納できるクローゼットからシューズBOX。
宅配BOXやカラーTVインターホンなど納得のいく室内設備となっています。
女性にも安心セキュリティ面に優れたマンション。
オートロック、防犯カメラも設置されており防犯性の高い造りとなっています。
周辺地図
物件概要
| 物件種別 | 賃貸マンション |
|---|---|
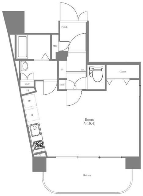
| 間取り・専有面積 | 1R / 30.98m²~ |
| 築年月 | 2005年07月 |
| 規模・構造 | 鉄筋コンクリート造 11階建て |
| 駐車場 | |
| 設備 | オートロック , 光ファイバー対応 , 宅配ボックス , 浴室換気乾燥機 , ウォシュレット , ディンプルキー , 独立洗面台 , 脱衣室 , バストイレ別 |
| 特徴 | デザイナーズ , ペット相談可 , 二人入居可 , 分譲賃貸 , 保証人不要 , レジデンス |
| 取引態様 | 媒介 |
| 自社物件番号 | MA-15 |
- ※当サイトは、建物に関するサイトとなっております。
条件等は、お部屋ごとに異なる場合がございますので、お部屋の事に関しては、必ず募集条件を直接ご確認ください - ※分譲賃貸マンションの場合、お部屋によって家賃・管理費・敷金・礼金など賃貸借契約に関する設定が様々です。各所有者様によって、設備・仕様・内装などが変更されている場合もございます。
- ※ペット飼育やSOHO利用の可否に関しては、建物の管理規約で可能になっていても、お部屋の所有者様によって禁止の場合もございますのでご注意下さい。
- 詳細はお電話、メール、LINEにてスタッフまでご相談下さい。
周辺環境
メイクスデザイン渋谷神泉のお問い合わせ
最新の空室情報・詳細情報などお気軽にお問い合わせください。
- お問い合わせは24時間OK!
- 03-6279-2032
- 営業時間:10:00~20:00






























