この物件の特徴
この物件の設備
★分譲賃貸★水商売可★独立洗面台★
★☆★建物の特徴★☆★
モニター付きオートロック/防犯カメラ/ディンプルキー/ゴミ置き場/CS/BS/CATV/エレベーター/ネット無料/分譲/デザイナーズ/メールボックス/宅配BOX
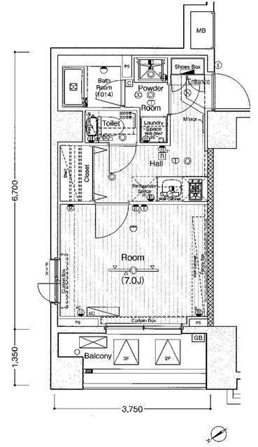
★☆★お部屋の特徴★☆★
独立洗面/システムキッチン/バス・トイレ別/洗濯機室内/照明/フローリング/バルコニー/エアコン/モニター付きインターホン/ペット可/浴室乾燥機/2口ガスコンロ
(※上記は部屋により異なる場合がございます)
★☆★近くのお店★☆★
アンテンドゥ130m/ファミリーマート170m/ピザ・ダーノ400m
★☆★近くの道路★☆★
川越街道
東京都練馬区に位置するデザイナーズマンション「ブライズ練馬ノース」のご紹介です。
東京メトロ有楽町線「地下鉄赤塚駅」徒歩10分、東武東上線「東武練馬駅」徒歩11分と2路線利用可能。
近くにはドン・キホーテがあるので日用品の買い出しには困りません。
北口には映画館もあり、休日に映画鑑賞するのもおすすめです。
オートロック、防犯カメラが設置されているので女性の一人暮らしでも安心。
独立洗面台、バストイレ別、2口コンロシステムキッチン、浴室乾燥機付きと分譲賃貸マンションの為、設備もハイグレード。
周辺地図
物件概要
| 物件種別 | 賃貸マンション |
|---|---|
| 間取り・専有面積 | 1K / 25.66m²~ |
| 築年月 | 2015年11月 |
| 規模・構造 | 鉄筋コンクリート造 |
| 駐車場 | |
| 設備 | オートロック , 光ファイバー対応 , 宅配ボックス , 浴室換気乾燥機 , ウォシュレット , ディンプルキー , 独立洗面台 , 脱衣室 , バストイレ別 |
| 特徴 | 敷金・礼金0 , 分譲賃貸 , 保証人不要 , レジデンス |
| 取引態様 | 媒介 |
| 自社物件番号 | C-8710 |
- ※当サイトは、建物に関するサイトとなっております。
条件等は、お部屋ごとに異なる場合がございますので、お部屋の事に関しては、必ず募集条件を直接ご確認ください - ※分譲賃貸マンションの場合、お部屋によって家賃・管理費・敷金・礼金など賃貸借契約に関する設定が様々です。各所有者様によって、設備・仕様・内装などが変更されている場合もございます。
- ※ペット飼育やSOHO利用の可否に関しては、建物の管理規約で可能になっていても、お部屋の所有者様によって禁止の場合もございますのでご注意下さい。
- 詳細はお電話、メール、LINEにてスタッフまでご相談下さい。
周辺環境
ブライズ練馬ノースのお問い合わせ
最新の空室情報・詳細情報などお気軽にお問い合わせください。
- お問い合わせは24時間OK!
- 03-6279-2032
- 営業時間:10:00~20:00
































