この物件の特徴
この物件の設備
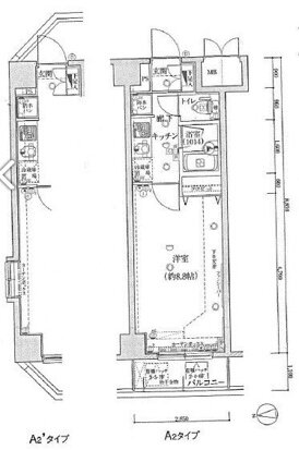
★ペット可★浴室乾燥★
★☆★建物の特徴★☆★
モニター付きオートロック/光ファイバー/CS/BS/CATV/宅配ボックス/エレベーター/敷地内ごみ置き場/駐輪場/分譲
★☆★お部屋の特徴★☆★
システムキッチン/バストイレ別/浴室換気乾燥機/温水洗浄便座/フローリング/エアコン/クローゼット/シューズボックス/TVモニター付きインターホン/給湯/バルコニー/ペット可
(※上記は部屋により異なる場合がございます)
★☆★近くのお店★☆★
サンクス220m/まいばすけっと150m
★☆★近くの道路★☆★
言問通り
グランティアラ浅草は、東京都台東区松が谷に位置する2008年築、鉄筋コンクリート造12階建て・総戸数33戸の分譲マンションです。落ち着いた規模感と高級感ある造りが魅力です。
最寄りはつくばエクスプレス「浅草駅」徒歩6分、東京メトロ銀座線「稲荷町駅」徒歩9分など複数路線が利用でき、交通利便性も良好。浅草寺も徒歩圏内で、歴史ある街並みや観光スポット、飲食店が充実した便利な住環境です。
共用部にはオートロック、防犯カメラ、宅配ボックス、駐輪場を備え、ディンプルキー採用住戸もあるなど、防犯面でも安心。住戸は主に1Kタイプで、2口コンロ付きシステムキッチン、バストイレ別、浴室乾燥機、エアコンなど設備も充実しています。
また、ペット飼育相談可能 な住戸もあり、愛犬・愛猫と一緒に暮らしたい方にも適したマンションです。
周辺地図
物件概要
| 物件種別 | 賃貸マンション |
|---|---|
| 間取り・専有面積 | 1K / 25.22m²~ |
| 築年月 | 2008年03月 |
| 規模・構造 | 鉄筋コンクリート造 12階建て |
| 駐車場 | |
| 設備 | オートロック , 光ファイバー対応 , 浴室換気乾燥機 , ウォシュレット , ディンプルキー , バストイレ別 |
| 特徴 | 敷金・礼金0 , デザイナーズ , ペット相談可 , 分譲賃貸 , 保証人不要 |
| 取引態様 | 媒介 |
| 自社物件番号 | MA-680 |
- ※当サイトは、建物に関するサイトとなっております。
条件等は、お部屋ごとに異なる場合がございますので、お部屋の事に関しては、必ず募集条件を直接ご確認ください - ※分譲賃貸マンションの場合、お部屋によって家賃・管理費・敷金・礼金など賃貸借契約に関する設定が様々です。各所有者様によって、設備・仕様・内装などが変更されている場合もございます。
- ※ペット飼育やSOHO利用の可否に関しては、建物の管理規約で可能になっていても、お部屋の所有者様によって禁止の場合もございますのでご注意下さい。
- 詳細はお電話、メール、LINEにてスタッフまでご相談下さい。
周辺環境
グランティアラ浅草のお問い合わせ
最新の空室情報・詳細情報などお気軽にお問い合わせください。
- お問い合わせは24時間OK!
- 03-6279-2032
- 営業時間:10:00~20:00
























