この物件の特徴
この物件の設備
☆ペット可☆オートロック☆
★☆★建物の特徴★☆★
オートロック/分譲/宅配BOX/ペット可
★☆★お部屋の特徴★☆★
システムキッチン/浴室換気乾燥機/独立洗面台/脱衣室/バストイレ別
(※上記は部屋により異なる場合がございます)
★☆★近くのお店★☆★
ファミリーマート160m/セブンイレブン250m
★☆★近くの道路★☆★
国際通り
人気の浅草エリアにある分譲マンションシリーズ【プレール・ドゥーク西浅草】
東京メトロ日比谷線「入谷駅」徒歩8分、つくばエクスプレス「浅草駅」徒歩6分、東京メトロ銀座線「田原町駅」徒歩12分と3駅利用可能で交通利便性の高い立地です♪
観光地なので飲食店が点在していて外食を楽しむことが出来ます★
ドン・キホーテも至近で日用品のお買い物も楽々(^_-)-☆
エントランスにはモニター付きオートロック完備でセキュリティ万全!
室内はペット飼育可能なので大切な家族とも一緒に暮らせます。
周辺地図
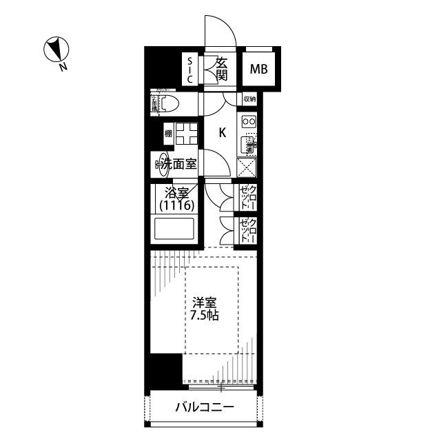
物件概要
| 物件種別 | 賃貸マンション |
|---|---|
| 間取り・専有面積 | 1K / 25.52m²~ |
| 築年月 | 2015年10月 |
| 規模・構造 | 鉄筋コンクリート造 13階建て |
| 駐車場 | |
| 設備 | オートロック , 宅配ボックス , 浴室換気乾燥機 , ウォシュレット , 独立洗面台 , バストイレ別 |
| 特徴 | ペット相談可 , 分譲賃貸 , 保証人不要 , インターネット無料 , レジデンス |
| 取引態様 | 媒介 |
| 自社物件番号 | MB-1108 |
- ※当サイトは、建物に関するサイトとなっております。
条件等は、お部屋ごとに異なる場合がございますので、お部屋の事に関しては、必ず募集条件を直接ご確認ください - ※分譲賃貸マンションの場合、お部屋によって家賃・管理費・敷金・礼金など賃貸借契約に関する設定が様々です。各所有者様によって、設備・仕様・内装などが変更されている場合もございます。
- ※ペット飼育やSOHO利用の可否に関しては、建物の管理規約で可能になっていても、お部屋の所有者様によって禁止の場合もございますのでご注意下さい。
- 詳細はお電話、メール、LINEにてスタッフまでご相談下さい。
周辺環境
プレール・ドゥーク西浅草のお問い合わせ
最新の空室情報・詳細情報などお気軽にお問い合わせください。
- お問い合わせは24時間OK!
- 03-6279-2032
- 営業時間:10:00~20:00



































