この物件の特徴
この物件の設備
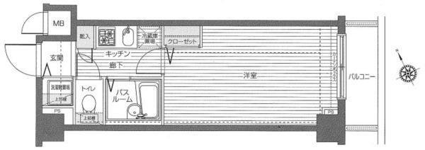
★オートロック★バス・トイレ別★
★☆★建物の特徴★☆★
バイク置場/駐輪場/BS/CSアンテナ/オートロック
★☆★お部屋の特徴★☆★
フローリング/エアコン/2口ガスコンロ/モニター付きインターホン/室内洗濯機置場/バルコニー/バス・トイレ別
(※上記は部屋により異なる場合がございます)
★☆★近くのお店★☆★
ファミリーマート150m/セブンイレブン180m/スーパー190m
★☆★近くの道路★☆★
永代通り
中央区日本橋兜町の分譲賃貸マンション【トーシンフェニックス日本橋兜町参番館】
複数路線使えるためどこへのアクセスも楽で最高の立地となっております。
更に分譲賃貸らしく、独立洗面台・2口ガスコンロ・浴室乾燥機・宅配BOX など充実の設備です♪
銀座勤務の方にオススメとなっており、TVモニター付きオートロックも完備しているため女性の一人暮らしも安心です(^^)/
※住戸により募集条件が異なる場合がございます。
詳しくは電話・メールにてお問い合わせください。
周辺地図
物件概要
| 物件種別 | 賃貸マンション |
|---|---|
| 間取り・専有面積 | 1K / 21.92m²~ |
| 築年月 | 2006年09月 |
| 規模・構造 | 鉄筋コンクリート造 5階建て |
| 駐車場 | |
| 設備 | 浴室換気乾燥機 , バストイレ別 |
| 特徴 | 保証人不要 |
| 取引態様 | 媒介 |
| 自社物件番号 | MB-1183 |
- ※当サイトは、建物に関するサイトとなっております。
条件等は、お部屋ごとに異なる場合がございますので、お部屋の事に関しては、必ず募集条件を直接ご確認ください - ※分譲賃貸マンションの場合、お部屋によって家賃・管理費・敷金・礼金など賃貸借契約に関する設定が様々です。各所有者様によって、設備・仕様・内装などが変更されている場合もございます。
- ※ペット飼育やSOHO利用の可否に関しては、建物の管理規約で可能になっていても、お部屋の所有者様によって禁止の場合もございますのでご注意下さい。
- 詳細はお電話、メール、LINEにてスタッフまでご相談下さい。
周辺環境
トーシンフェニックス日本橋兜町参番館のお問い合わせ
最新の空室情報・詳細情報などお気軽にお問い合わせください。
- お問い合わせは24時間OK!
- 03-6279-2032
- 営業時間:10:00~20:00






























