この物件の特徴
この物件の設備
★独立洗面台★水商売OK★
★☆★建物の特徴★☆★
外観タイル張り/駐輪場あり/バイク置場/角部屋/防犯カメラ/モニター付きオートロック/宅配ボックス/エレベーター/ディンプルキー/ゴミ置き場/ペット飼育可/24時間セキュリティー/分譲
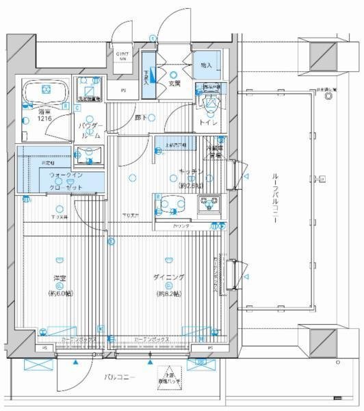
★☆★お部屋の特徴★☆★
バス・トイレ別/独立洗面台/脱衣所/洗濯機室内/浴室乾燥機/温水洗浄便座/クローゼット/シューズボックス/フローリング/バルコニー/エアコン/モニター付きインターホン/人感センサー付き照明/MMコンセント
(※上記は部屋により異なる場合がございます)
★☆★近くのお店★☆★
セブンイレブン200m/ファミリーマート210m/マルエツ280m
★☆★近くの道路★☆★
環七通り
高円寺駅より徒歩12分の地に建つ高級分譲賃貸マンション「メインステージ高円寺」
駐輪場やバイク置場も完備されていますので、自転車やバイクでの移動をお考えの方にもおすすめです。
近隣には、まいばすけっとやマルエツなどのスーパーや、コンビニ、ドラッグストア、商店街、飲食店なども点在し、日常のお買い物やお食事にも困りません。
ホワイトとダークグレーを基調としたスタイリッシュな建物です。
総戸数68戸、20~40平米台、1DK~1LDKタイプを中心に、シングルやDINKSなど、少人数での暮らしに適したお部屋が揃っています。
住戸共通設備はガスシステムキッチン・独立洗面台・浴室乾燥機・洗浄便座・エアコンで、更に1LDKには追焚バスが備えられており、おうち時間を快適にスムーズにサポートしてくれます。
オートロックや防犯カメラ、ディンプルキー、ダブルロック、モニター付インターホンも採用され、セキュリティ面でも安心です。
宅配ボックスもありますので、お忙しい方の荷物の受取りにも重宝します。
周辺地図
物件概要
| 物件種別 | 賃貸マンション |
|---|---|
| 間取り・専有面積 | 1DK / 41.18m²~ |
| 築年月 | 2009年02月 |
| 規模・構造 | 鉄筋コンクリート造 8階建て |
| 駐車場 | |
| 設備 | オートロック , 宅配ボックス , 浴室換気乾燥機 , ウォシュレット , 玄関ダブルロック , ディンプルキー , 独立洗面台 , 脱衣室 , バストイレ別 |
| 特徴 | ペット相談可 , 二人入居可 , 分譲賃貸 , 保証人不要 , 1DK以上 , レジデンス |
| 取引態様 | 媒介 |
| 自社物件番号 | MC-2853 |
- ※当サイトは、建物に関するサイトとなっております。
条件等は、お部屋ごとに異なる場合がございますので、お部屋の事に関しては、必ず募集条件を直接ご確認ください - ※分譲賃貸マンションの場合、お部屋によって家賃・管理費・敷金・礼金など賃貸借契約に関する設定が様々です。各所有者様によって、設備・仕様・内装などが変更されている場合もございます。
- ※ペット飼育やSOHO利用の可否に関しては、建物の管理規約で可能になっていても、お部屋の所有者様によって禁止の場合もございますのでご注意下さい。
- 詳細はお電話、メール、LINEにてスタッフまでご相談下さい。
周辺環境
メインステージ高円寺のお問い合わせ
最新の空室情報・詳細情報などお気軽にお問い合わせください。
- お問い合わせは24時間OK!
- 03-6279-2032
- 営業時間:10:00~20:00






























