この物件の特徴
この物件の設備
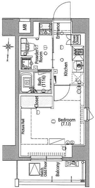
★ペット可★独立洗面台★
★☆★建物の特徴★☆★
ペット可/モニター付きオートロック/宅配ボックス/エレベーター/防犯カメラ/ディンプルキー/ゴミ置き場/バイク置場/駐輪場/24時間ゴミ出し可
★☆★お部屋の特徴★☆★
システムキッチン/バス・トイレ別/独立洗面台/脱衣所/洗濯機室内/浴室乾燥機/温水洗浄便座/二口コンロ/クローゼット/シューズボックス/照明/フローリング/バルコニー/エアコン/モニター付きインターホン/24時間換気システム/ネット無料/二面採光
(※上記は部屋により異なる場合がございます)
★☆★近くのお店★☆★
銭湯350m/セブンイレブン400m
★☆★近くの道路★☆★
国際通り
東京メトロ日比谷線「三ノ輪駅」より徒歩7分の分譲マンション「プレセダンヒルズ三ノ輪」
東京メトロ日比谷線「入谷駅」より徒歩10分、都営都電荒川線「三ノ輪橋」徒歩11分と複数路線利用可能で主要エリアへのアクセスも抜群。
近くには隅田川が流れており、川沿いの散策やランニングでリフレッシュ出来ます。
閑静な住宅街なので落ち着いた住環境となっております。
モニター付きオートロック、防犯カメラとセキュリティ対策も万全。
敷地内ゴミ置き場や宅配ボックスも完備。
室内は、1Kタイプとなっていて、単身者にオススメ。
2口コンロシステムキッチン、バストイレ別、独立洗面台、浴室乾燥機と充実した設備で快適な生活を送れます。
ペット飼育可能なので大切な家族とも一緒に暮らせます。
周辺地図
物件概要
| 物件種別 | 賃貸マンション |
|---|---|
| 間取り・専有面積 | 1K / 25.92m²~ |
| 築年月 | 2017年02月 |
| 規模・構造 | 鉄筋コンクリート造 10階建て |
| 駐車場 | |
| 設備 | オートロック , 光ファイバー対応 , 宅配ボックス , 浴室換気乾燥機 , ウォシュレット , 独立洗面台 , 脱衣室 , バストイレ別 |
| 特徴 | ペット相談可 , 分譲賃貸 , 保証人不要 , インターネット無料 |
| 取引態様 | 媒介 |
| 自社物件番号 | KK-0234 |
- ※当サイトは、建物に関するサイトとなっております。
条件等は、お部屋ごとに異なる場合がございますので、お部屋の事に関しては、必ず募集条件を直接ご確認ください - ※分譲賃貸マンションの場合、お部屋によって家賃・管理費・敷金・礼金など賃貸借契約に関する設定が様々です。各所有者様によって、設備・仕様・内装などが変更されている場合もございます。
- ※ペット飼育やSOHO利用の可否に関しては、建物の管理規約で可能になっていても、お部屋の所有者様によって禁止の場合もございますのでご注意下さい。
- 詳細はお電話、メール、LINEにてスタッフまでご相談下さい。
周辺環境
プレセダンヒルズ三ノ輪のお問い合わせ
最新の空室情報・詳細情報などお気軽にお問い合わせください。
- お問い合わせは24時間OK!
- 03-6279-2032
- 営業時間:10:00~20:00

































