この物件の特徴
この物件の設備
★ペット可★分譲タイプ★保証人不要
★☆★建物の特徴★☆★
ペット可/モニター付きオートロック/宅配ボックス/エレベーター/防犯カメラ/ディンプルキー/ゴミ置き場/CS/BS
★☆★お部屋の特徴★☆★
システムキッチン/バス・トイレ別/独立洗面台/脱衣所/洗濯機室内/浴室乾燥機/クローゼット/シューズボックス/照明/フローリング/バルコニー/エアコン/モニター付きインターホン/24時間換気システム
(※上記は部屋により異なる場合がございます)
★☆★近くのお店★☆★
ケンタッキー130m/マイバスケット240m
★☆★近くの道路★☆★
中原街道
★☆★水商売ペット可賃貸情報満載★☆★
水商売賃貸不動産みずべやにお任せください! 足立区・墨田区・荒川区・世田谷区・板橋区・台東区・江戸川区・千代田区・大田区・中央区・葛飾区・豊島区・北区・中野区・江東区・練馬区・品川区・文京区・渋谷区・港区・新宿区・目黒区・杉並区どこでもご紹介可能♪水商売・ナイトワーク・ホスト・風俗嬢・AV嬢・ボーイの皆様お部屋探しは水商売賃貸のプロ『みずべや』♪
周辺地図
物件概要
| 物件種別 | 賃貸マンション |
|---|---|
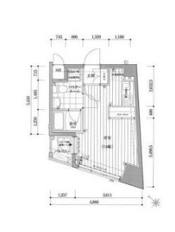
| 間取り・専有面積 | 1R / 22.35m²~ |
| 築年月 | 2006年02月 |
| 規模・構造 | 鉄筋コンクリート造 9階建て |
| 駐車場 | |
| 設備 | オートロック , 光ファイバー対応 , 宅配ボックス , 浴室換気乾燥機 , ディンプルキー , 独立洗面台 , 脱衣室 , バストイレ別 |
| 特徴 | ペット相談可 , 保証人不要 |
| 取引態様 | 媒介 |
| 自社物件番号 | MB-2310 |
- ※当サイトは、建物に関するサイトとなっております。
条件等は、お部屋ごとに異なる場合がございますので、お部屋の事に関しては、必ず募集条件を直接ご確認ください - ※分譲賃貸マンションの場合、お部屋によって家賃・管理費・敷金・礼金など賃貸借契約に関する設定が様々です。各所有者様によって、設備・仕様・内装などが変更されている場合もございます。
- ※ペット飼育やSOHO利用の可否に関しては、建物の管理規約で可能になっていても、お部屋の所有者様によって禁止の場合もございますのでご注意下さい。
- 詳細はお電話、メール、LINEにてスタッフまでご相談下さい。
周辺環境
アデッソ戸越銀座のお問い合わせ
最新の空室情報・詳細情報などお気軽にお問い合わせください。
- お問い合わせは24時間OK!
- 03-6279-2032
- 営業時間:10:00~20:00

























