この物件の特徴
この物件の設備
★ペット可★浴室乾燥機★分譲★
★☆★建物の特徴★☆★
都市ガス/外壁タイル張り/モニター付きオートロック/宅配ボックス/エレベーター/防犯カメラ/風除室/インターネット対応/BS/CS/ディンプルキー/ダブルロック/敷地内ゴミ置き場/24時間ゴミ出し可能/駐輪場/分譲
★☆★お部屋の特徴★☆★
システムキッチン/バス・トイレ別/独立洗面化粧台/脱衣所/洗濯機室内/浴室乾燥機/温水洗浄便座/クローゼット/シューズボックス/照明/フローリング/バルコニー/エアコン/人感照明センサー/モニター付きインターホン/24時間換気システム/ペット可/インターネット無料
(※上記は部屋により異なる場合がございます)
★☆★近くのお店★☆★
セブンイレブン120m/マルエツ190m
★☆★近くの道路★☆★
尾久橋通り
「メインステージ東日暮里」は、荒川区東日暮里5丁目に位置する高級分譲賃貸マンションです。2019年11月築、地上13階建て・総戸数41戸の鉄筋コンクリート造で、株式会社青山メインランドが管理を行っています。
外観はスタイリッシュで高級感があり、オートロックやTVモニター付きインターホンが設置されているため、防犯面でも安心です。さらに、宅配ボックスやメールボックス、専用ゴミ置き場、自転車置き場など、日々の生活をサポートする設備も充実しています。ペットの飼育も相談可能です。
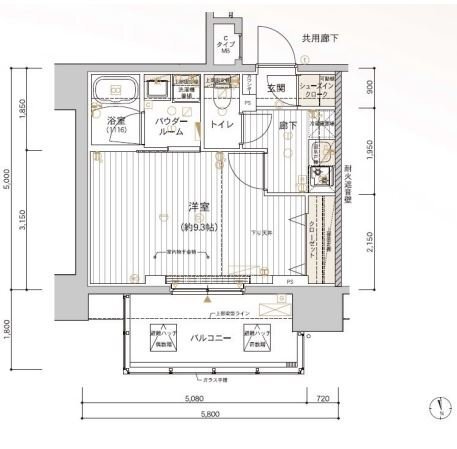
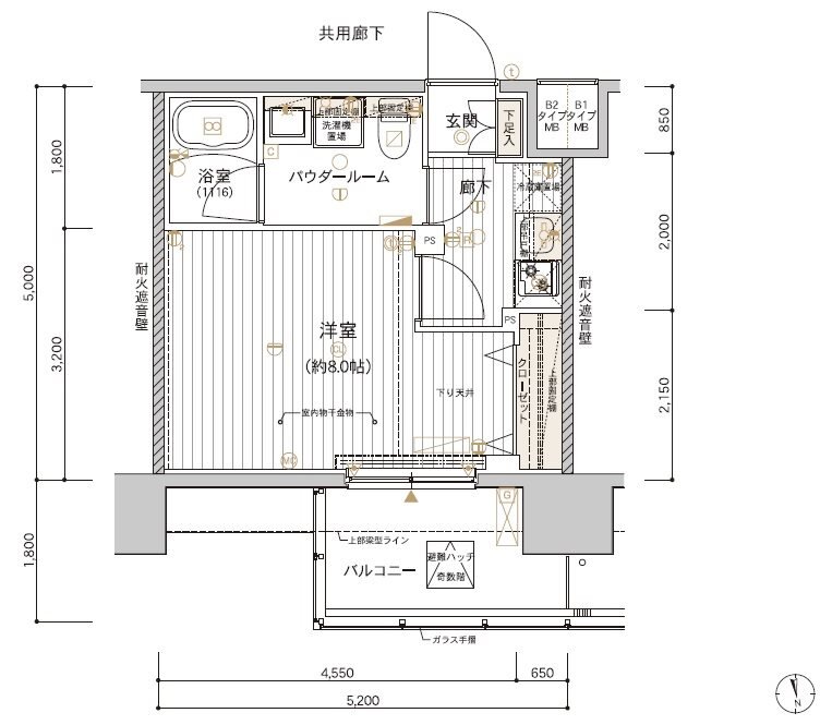
間取りは1Kタイプで、主に単身者向けの仕様となっており、快適な都市生活を実現します。最寄り駅はJR山手線「鶯谷」駅で、徒歩5分という利便性の高い立地に加え、JR常磐線や東京メトロ日比谷線など複数路線が利用でき、都心へのアクセスも良好です。
周辺にはスーパーやコンビニ、商業施設も多く、生活環境にも優れたロケーションです。
周辺地図
物件概要
| 物件種別 | 賃貸マンション |
|---|---|
| 間取り・専有面積 | 1K / 26m²~ |
| 築年月 | 2019年11月 |
| 規模・構造 | 鉄筋コンクリート造 13階建て |
| 駐車場 | |
| 設備 | オートロック , 光ファイバー対応 , 宅配ボックス , 浴室換気乾燥機 , ウォシュレット , シャンプードレッサー , 玄関ダブルロック , ディンプルキー , 独立洗面台 , 脱衣室 , バストイレ別 |
| 特徴 | 敷金・礼金0 , ペット相談可 , 分譲賃貸 , 保証人不要 , インターネット無料 , レジデンス |
| 取引態様 | 媒介 |
| 自社物件番号 | C-8059 |
- ※当サイトは、建物に関するサイトとなっております。
条件等は、お部屋ごとに異なる場合がございますので、お部屋の事に関しては、必ず募集条件を直接ご確認ください - ※分譲賃貸マンションの場合、お部屋によって家賃・管理費・敷金・礼金など賃貸借契約に関する設定が様々です。各所有者様によって、設備・仕様・内装などが変更されている場合もございます。
- ※ペット飼育やSOHO利用の可否に関しては、建物の管理規約で可能になっていても、お部屋の所有者様によって禁止の場合もございますのでご注意下さい。
- 詳細はお電話、メール、LINEにてスタッフまでご相談下さい。
周辺環境
メインステージ東日暮里のお問い合わせ
最新の空室情報・詳細情報などお気軽にお問い合わせください。
- お問い合わせは24時間OK!
- 03-6279-2032
- 営業時間:10:00~20:00

































