この物件の特徴
この物件の設備
★ペット可★浴室乾燥★
★☆★建物の特徴★☆★
モニター付きオートロック/宅配ボックス/エレベーター/防犯カメラ/ディンプルキー/ダブルロック/敷地内ゴミ置き場/風除室/光ファイバー/BS/CS/CATV/ペット足洗い場/駐車場/バイク置き場/駐輪場
★☆★お部屋の特徴★☆★
システムキッチン/バス・トイレ別/独立洗面化粧台/脱衣所/洗濯機室内/浴室乾燥機/温水洗浄便座/人感照明センサー/洋室TV付/クローゼット/シューズボックス/照明/フローリング/バルコニー/エアコン/モニター付きインターホン/24時間換気システム/ペット可
(※上記は部屋により異なる場合がございます)
★☆★近くのお店★☆★
セブンイレブン180m/マルエツ100m
★☆★近くの道路★☆★
旧海岸通り
アクセス至便の好立地、田町・三田エリアに建つ分譲賃貸マンション「メインステージ三田アーバンスクエア」
1Kから1LDKのシングル向けの住戸を揃えています。
全住戸、2口ガスコンロと独立洗面台を採用しており、時代のニーズに合わせた作りになっています。
オートロック・防犯カメラ・ディンプルキーダブルロック・モニター付インターフォンと言った基本的な防犯設備に加えて、24時間セキュリティシステムも搭載しており、高い防犯体制で居住者の安全を守ります。
周辺地図
物件概要
| 物件種別 | 賃貸マンション |
|---|---|
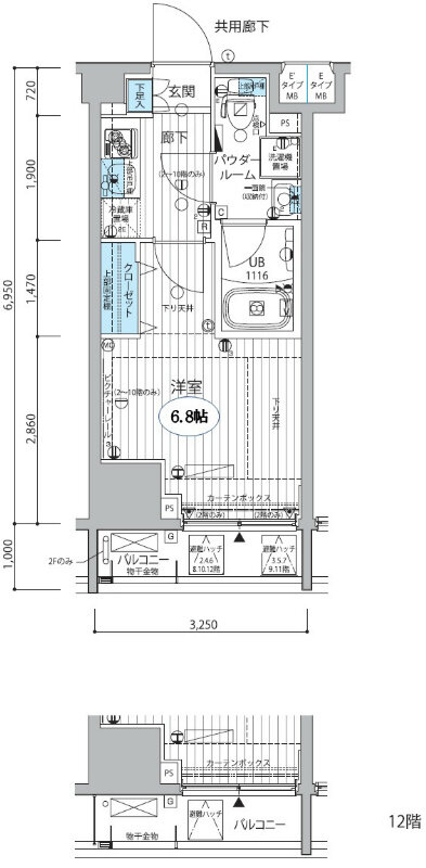
| 間取り・専有面積 | 1K / 25.68m²~ |
| 築年月 | 2014年03月 |
| 規模・構造 | 鉄筋コンクリート造 12階建て |
| 駐車場 | あり |
| 設備 | オートロック , 光ファイバー対応 , 宅配ボックス , 浴室換気乾燥機 , ウォシュレット , シャンプードレッサー , 玄関ダブルロック , ディンプルキー , 独立洗面台 , 脱衣室 , バストイレ別 |
| 特徴 | 敷金・礼金0 , デザイナーズ , ペット相談可 , 分譲賃貸 , 保証人不要 , インターネット無料 , レジデンス |
| 取引態様 | 媒介 |
| 自社物件番号 | MA-912 |
- ※当サイトは、建物に関するサイトとなっております。
条件等は、お部屋ごとに異なる場合がございますので、お部屋の事に関しては、必ず募集条件を直接ご確認ください - ※分譲賃貸マンションの場合、お部屋によって家賃・管理費・敷金・礼金など賃貸借契約に関する設定が様々です。各所有者様によって、設備・仕様・内装などが変更されている場合もございます。
- ※ペット飼育やSOHO利用の可否に関しては、建物の管理規約で可能になっていても、お部屋の所有者様によって禁止の場合もございますのでご注意下さい。
- 詳細はお電話、メール、LINEにてスタッフまでご相談下さい。
周辺環境
メインステージ三田アーバンスクエアのお問い合わせ
最新の空室情報・詳細情報などお気軽にお問い合わせください。
- お問い合わせは24時間OK!
- 03-6279-2032
- 営業時間:10:00~20:00




































