この物件の特徴
この物件の設備
★オートロック★ペット可★
★☆★建物の特徴★☆★
モニター付きオートロック/宅配ボックス/エレベーター/防犯カメラ/ディンプルキー/ゴミ置き場/CS/BS/CATVアンテナ/ネット使用料不要/デザイナーズ
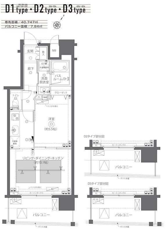
★☆★お部屋の特徴★☆★
システムキッチン/バス・トイレ別/独立洗面台/脱衣所/洗濯機室内/浴室乾燥機/温水洗浄便座/クローゼット/シューズボックス/照明/フローリング/バルコニー/エアコン/モニター付きインターホン/24時間換気システム/ペット可/追い焚き
(※上記は部屋により異なる場合がございます)
★☆★近くのお店★☆★
ローソン150m/セブンイレブン200m
★☆★近くの道路★☆★
新大橋通り
水天宮前エリアに建つデザイナーズマンション。
水天宮前駅・茅場町駅・人形町駅が徒歩10分圏内にあり、半蔵門線・東西線・日比谷線・浅草線と合計4路線利用可能で主要都市へのスムーズなアクセスが可能です。
コンパクトな広さの1LDKの住戸を揃えており、シングルやディンクスに最適です。
ガスシステムキッチン・追焚バス・浴室乾燥機・洗浄便座・エアコン・床暖房・無料インターネット回線といった充実した室内設備を備えており、居住者の快適な生活をサポートします。
ペットの飼育が相談可能で、大切な家族と一緒に暮らすことができます。
周辺地図
物件概要
| 物件種別 | 賃貸マンション |
|---|---|
| 間取り・専有面積 | 1LDK / 40.48m²~ |
| 築年月 | 2020年03月 |
| 規模・構造 | 鉄筋コンクリート造 12階建て |
| 駐車場 | |
| 設備 | オートロック , 光ファイバー対応 , 宅配ボックス , 追焚き機能付 , オートバス , 浴室換気乾燥機 , ウォシュレット , シャンプードレッサー , 玄関ダブルロック , ディンプルキー , 独立洗面台 , 脱衣室 , バストイレ別 |
| 特徴 | デザイナーズ , ペット相談可 , 二人入居可 , 分譲賃貸 , 保証人不要 , インターネット無料 , 1DK以上 , 築浅 |
| 取引態様 | 媒介 |
| 自社物件番号 | MK-884 |
- ※当サイトは、建物に関するサイトとなっております。
条件等は、お部屋ごとに異なる場合がございますので、お部屋の事に関しては、必ず募集条件を直接ご確認ください - ※分譲賃貸マンションの場合、お部屋によって家賃・管理費・敷金・礼金など賃貸借契約に関する設定が様々です。各所有者様によって、設備・仕様・内装などが変更されている場合もございます。
- ※ペット飼育やSOHO利用の可否に関しては、建物の管理規約で可能になっていても、お部屋の所有者様によって禁止の場合もございますのでご注意下さい。
- 詳細はお電話、メール、LINEにてスタッフまでご相談下さい。
周辺環境
ズーム日本橋蛎殻町のお問い合わせ
最新の空室情報・詳細情報などお気軽にお問い合わせください。
- お問い合わせは24時間OK!
- 03-6279-2032
- 営業時間:10:00~20:00

































