この物件の特徴
この物件の設備
★保証人不要★水商売相談可★
★☆★建物の特徴★☆★
モニター付きオートロック/宅配ボックス/バイク置き場/エレベーター/ペット可
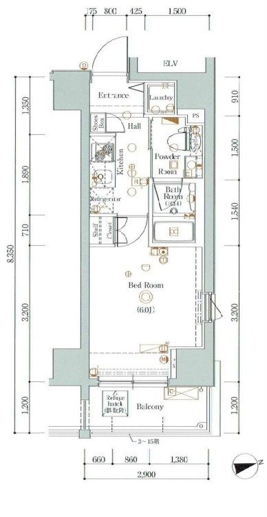
★☆★お部屋の特徴★☆★
システムキッチン/バス・トイレ別/浴室換気乾燥暖房機/フローリング/エアコン/室内洗濯機置き場/シューズボックス/2口コンロ/バルコニー/温水洗浄便座/独立洗面台/モニター付きインターホン/クローゼット
(※上記は部屋により異なる場合がございます)
★☆★近くのお店★☆★
セブンイレブン150m/まいばすけっと260m
★☆★近くの道路★☆★
第一京浜
品川区南大井5丁目、JR京浜東北線『大森駅』徒歩9分の分譲マンション「グラントゥルース大森ライズ」地上15階建てのの鉄筋コンクリート造りです。
共用部分は安心のTVモニター付オートロックに24時間荷物の受け取り可能な宅配ボックス付きに加え、敷地内ゴミ捨て場完備。室内設備も、バストイレ別、浴室乾燥機、独立洗面台、温水洗浄便座と分譲ならではの優れた室内設備環境。
ペット可能なお部屋も多数ご紹介可能で、夜職、ナイトワーク、キャバクラ、クラブの審査も柔軟に対応可能です。
周辺地図
物件概要
| 物件種別 | 賃貸マンション |
|---|---|
| 間取り・専有面積 | 1K / 20.98m²~ |
| 築年月 | 2009年11月 |
| 規模・構造 | 鉄筋コンクリート造 15階建て |
| 駐車場 | |
| 設備 | オートロック , 光ファイバー対応 , 浴室換気乾燥機 , ウォシュレット , 独立洗面台 , 脱衣室 , バストイレ別 |
| 特徴 | ペット相談可 , 分譲賃貸 , 保証人不要 |
| 取引態様 | 媒介 |
| 自社物件番号 | C-3144 |
- ※当サイトは、建物に関するサイトとなっております。
条件等は、お部屋ごとに異なる場合がございますので、お部屋の事に関しては、必ず募集条件を直接ご確認ください - ※分譲賃貸マンションの場合、お部屋によって家賃・管理費・敷金・礼金など賃貸借契約に関する設定が様々です。各所有者様によって、設備・仕様・内装などが変更されている場合もございます。
- ※ペット飼育やSOHO利用の可否に関しては、建物の管理規約で可能になっていても、お部屋の所有者様によって禁止の場合もございますのでご注意下さい。
- 詳細はお電話、メール、LINEにてスタッフまでご相談下さい。
周辺環境
グラントゥルース大森ライズのお問い合わせ
最新の空室情報・詳細情報などお気軽にお問い合わせください。
- お問い合わせは24時間OK!
- 03-6279-2032
- 営業時間:10:00~20:00





























