この物件の特徴
この物件の設備
★ペット可★独立洗面台★
★☆★建物の特徴★☆★
モニター付きオートロック/宅配ボックス/エレベーター/防犯カメラ/ゴミ置き場/CATVアンテナ
★☆★お部屋の特徴★☆★
システムキッチン/バス・トイレ別/独立洗面台/脱衣所/洗濯機室内/温水洗浄便座/クローゼット/シューズボックス/照明/フローリング/バルコニー/エアコン/モニター付きインターホン/24時間換気システム
(※上記は部屋により異なる場合がございます)
★☆★近くのお店★☆★
業務スーパー20m/ダイソー50m
★☆★近くの道路★☆★
千川通り
★☆★ナイトワーク賃貸情報満載★☆★
ナイトワーク賃貸不動産みずべやにお任せください!水商売賃貸,風俗賃貸,キャバ嬢賃貸,ホスト賃貸,審査緩い,初期安,保証人不要,ナイトワーク賃貸,歌舞伎町不動産,お水賃貸、お部屋探しは水商売賃貸のプロ『みずべや』♪
周辺地図
物件概要
| 物件種別 | 賃貸マンション |
|---|---|
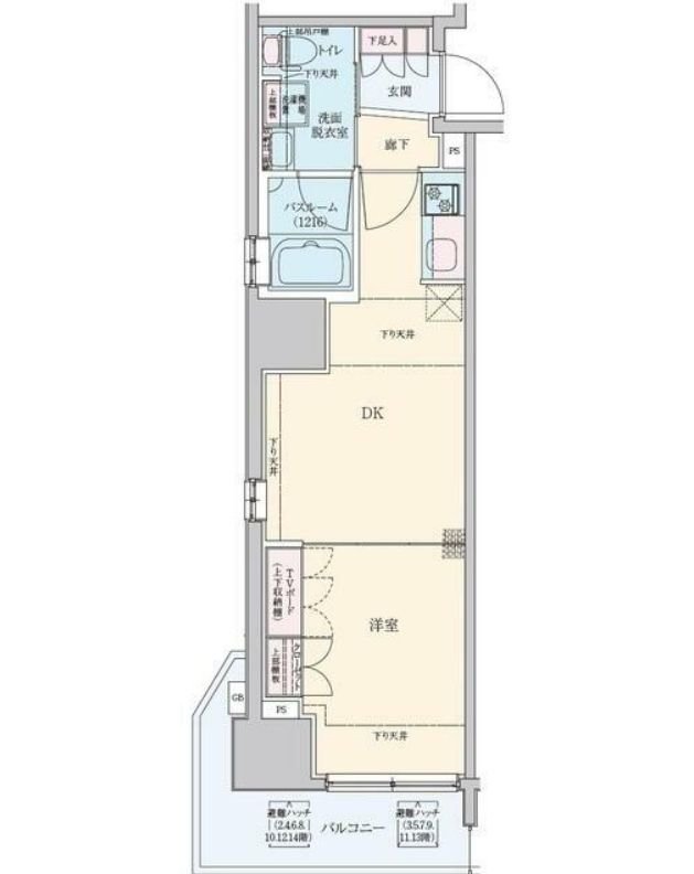
| 間取り・専有面積 | 1DK / 32.26m²~ |
| 築年月 | 2015年05月 |
| 規模・構造 | 鉄筋コンクリート造 14階建て |
| 駐車場 | |
| 設備 | オートロック , 光ファイバー対応 , 宅配ボックス , 追焚き機能付 , 浴室換気乾燥機 , ウォシュレット , 独立洗面台 , 脱衣室 , バストイレ別 |
| 特徴 | ペット相談可 , 二人入居可 , 分譲賃貸 , 保証人不要 , 1DK以上 |
| 取引態様 | 媒介 |
| 自社物件番号 | I-0467 |
- ※当サイトは、建物に関するサイトとなっております。
条件等は、お部屋ごとに異なる場合がございますので、お部屋の事に関しては、必ず募集条件を直接ご確認ください - ※分譲賃貸マンションの場合、お部屋によって家賃・管理費・敷金・礼金など賃貸借契約に関する設定が様々です。各所有者様によって、設備・仕様・内装などが変更されている場合もございます。
- ※ペット飼育やSOHO利用の可否に関しては、建物の管理規約で可能になっていても、お部屋の所有者様によって禁止の場合もございますのでご注意下さい。
- 詳細はお電話、メール、LINEにてスタッフまでご相談下さい。
周辺環境
ラル練馬のお問い合わせ
最新の空室情報・詳細情報などお気軽にお問い合わせください。
- お問い合わせは24時間OK!
- 03-6279-2032
- 営業時間:10:00~20:00





























