この物件の特徴
この物件の設備
★水商売OK★駅近★
★☆★建物の特徴★☆★
都市ガス/インターネット対応/エレベータ/宅配ボックス/オートロック/モニター付きオートロック/分譲タイプ/管理人/駅近
★☆★お部屋の特徴★☆★
システムキッチン/バス専用/トイレ専用/バス・トイレ別/洗面所/洗濯機置場/室内洗濯機置場/浴室乾燥機/エアコン/フローリング/収納スペース/モニター付きインターホン
(※上記は部屋により異なる場合がございます)
★☆★近くのお店★☆★
ライフ170m/セブンイレブン190m
★☆★近くの道路★☆★
新大橋通り
シーフォルム森下は、都営新宿線・都営大江戸線「森下駅」から徒歩圏に位置する、利便性と住み心地を兼ね備えたデザイナーズマンションです。周辺には飲食店やスーパー、コンビニが揃い、日常の買い物や外食にも困らない生活環境が魅力。建物はスタイリッシュな外観と洗練された共用部を備え、都市型ライフスタイルにフィットする設計が特徴です。住戸プランはシングル向けを中心に展開し、独立洗面台、システムキッチン、浴室乾燥機、温水洗浄便座など、毎日の暮らしを快適にする設備を標準搭載。オートロック、防犯カメラ、宅配ボックスも整備され、安心でスマートな暮らしをサポートします。利便性の高いロケーションと快適な住環境を求める方におすすめの都市型レジデンスです。
周辺地図
物件概要
| 物件種別 | 賃貸マンション |
|---|---|
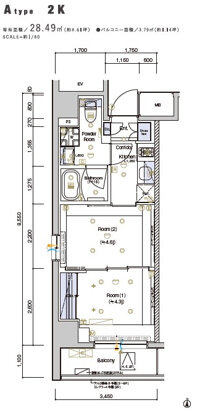
| 間取り・専有面積 | 2K / 28.48m²~ |
| 築年月 | 2020年02月 |
| 規模・構造 | 鉄筋コンクリート造 9階建て |
| 駐車場 | |
| 設備 | オートロック , 光ファイバー対応 , 宅配ボックス , 浴室換気乾燥機 , ウォシュレット , 脱衣室 , バストイレ別 |
| 特徴 | デザイナーズ , ペット相談可 , 分譲賃貸 , 保証人不要 , インターネット無料 , 1DK以上 , 築浅 |
| 取引態様 | 媒介 |
| 自社物件番号 | C-8161 |
- ※当サイトは、建物に関するサイトとなっております。
条件等は、お部屋ごとに異なる場合がございますので、お部屋の事に関しては、必ず募集条件を直接ご確認ください - ※分譲賃貸マンションの場合、お部屋によって家賃・管理費・敷金・礼金など賃貸借契約に関する設定が様々です。各所有者様によって、設備・仕様・内装などが変更されている場合もございます。
- ※ペット飼育やSOHO利用の可否に関しては、建物の管理規約で可能になっていても、お部屋の所有者様によって禁止の場合もございますのでご注意下さい。
- 詳細はお電話、メール、LINEにてスタッフまでご相談下さい。
周辺環境
シーフォルム森下のお問い合わせ
最新の空室情報・詳細情報などお気軽にお問い合わせください。
- お問い合わせは24時間OK!
- 03-6279-2032
- 営業時間:10:00~20:00




























