この物件の特徴
この物件の設備
★独立洗面台★水商売可★
★☆★建物の特徴★☆★
TVモニター付きオートロック/宅配ボックス/BS/CS/エレベーター/敷地内ゴミ置き場
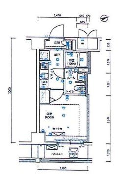
★☆★お部屋の特徴★☆★
システムキッチン/バス・トイレ別/浴室換気乾燥暖房機/フローリング/エアコン/室内洗濯機置き場/シューズボックス/2口コンロ/バルコニー/温水洗浄便座/独立洗面台/クローゼット
(※上記は部屋により異なる場合がございます)
★☆★近くのお店★☆★
相鉄ローゼン220m/ローソン330m
★☆★近くの道路★☆★
府中街道
★☆★キャバ嬢不動産情報満載★☆★
お部屋探しは、水商売賃貸不動産のプロに『みずべや』にお任せください。みずべやは、複数サイトを運営している為、様々な水商売・ナイトワークの方のご対応が可能です 【運営サイト】東京全域水商売賃貸はみずべや 水商売のお部屋・新宿歌舞伎町エリア水商売賃貸は、みずべや 歌舞伎のお部屋・風俗賃貸は、みずべや 風俗嬢のお部屋・ホスト賃貸は、みずべや ホストのお部屋・水商売ペット可賃貸は、みずべやペット可のお部屋・川崎水商売賃貸は、みずべや川崎のお部屋・大宮西川口水商売賃貸は、みずべや大宮西川口のお部屋・LGBT水商売賃貸は、みずべやLGBTお部屋・上野吉原水商売賃貸は、みずべや上野吉原のお部屋、お部屋探しはナイトワーク賃貸のプロ『みずべや』♪
周辺地図
物件概要
| 物件種別 | 賃貸マンション |
|---|---|
| 間取り・専有面積 | 1K / 22.68m²~ |
| 築年月 | 2021年03月 |
| 規模・構造 | 鉄筋コンクリート造 10階建て |
| 駐車場 | |
| 設備 | オートロック , 宅配ボックス , ウォシュレット , 脱衣室 , バストイレ別 |
| 特徴 | 分譲賃貸 , 保証人不要 , 築浅 |
| 取引態様 | 媒介 |
| 自社物件番号 | MB-8674 |
- ※当サイトは、建物に関するサイトとなっております。
条件等は、お部屋ごとに異なる場合がございますので、お部屋の事に関しては、必ず募集条件を直接ご確認ください - ※分譲賃貸マンションの場合、お部屋によって家賃・管理費・敷金・礼金など賃貸借契約に関する設定が様々です。各所有者様によって、設備・仕様・内装などが変更されている場合もございます。
- ※ペット飼育やSOHO利用の可否に関しては、建物の管理規約で可能になっていても、お部屋の所有者様によって禁止の場合もございますのでご注意下さい。
- 詳細はお電話、メール、LINEにてスタッフまでご相談下さい。
周辺環境
LEXE川崎塚越のお問い合わせ
最新の空室情報・詳細情報などお気軽にお問い合わせください。
- お問い合わせは24時間OK!
- 03-6279-2032
- 営業時間:10:00~20:00






















