この物件の特徴
この物件の設備
★NET無料★駅近★水商売相談可★
★☆★建物の特徴★☆★
外壁タイル張り/エレベーター/敷地内ゴミ置き場/CATVアンテナ/分譲/インターネット無料
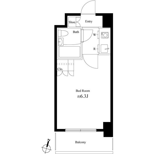
★☆★お部屋の特徴★☆★
システムキッチン/クローゼット/シューズボックス/照明/フローリング/バルコニー/エアコン/モニター付きインターホン/24時間換気システム
(※上記は部屋により異なる場合がございます)
★☆★近くのお店★☆★
ファミリマート160m/セブンイレブン190m
★☆★近くの道路★☆★
千葉街道
「カスタリア船橋」は、千葉県船橋市本町4丁目に位置し、JR総武・中央緩行線船橋駅や京成電鉄本線京成船橋駅から徒歩数分の便利な場所にあります。
鉄骨鉄筋コンクリート造りの安心で暮らしやすい建物は10階建てで、耐久性や防音性に優れた安心の建物です。
物件設備には無料インターネット、オートロック、防犯カメラ、エレベーターなどが完備されており、周辺にはnext船橋やファミリーマートなどの便利な施設が揃っています。
希少な駅近物件となりますので早い者勝ちとなっております。
周辺地図
物件概要
| 物件種別 | 賃貸マンション |
|---|---|
| 間取り・専有面積 | 1K / 17.4m²~ |
| 築年月 | 1997年03月 |
| 規模・構造 | 鉄骨鉄筋コンクリート造 10階建て |
| 駐車場 | |
| 設備 | オートロック , 宅配ボックス , ディンプルキー |
| 特徴 | 敷金・礼金0 , 分譲賃貸 , 保証人不要 , インターネット無料 |
| 取引態様 | 媒介 |
| 自社物件番号 | C-9177 |
- ※当サイトは、建物に関するサイトとなっております。
条件等は、お部屋ごとに異なる場合がございますので、お部屋の事に関しては、必ず募集条件を直接ご確認ください - ※分譲賃貸マンションの場合、お部屋によって家賃・管理費・敷金・礼金など賃貸借契約に関する設定が様々です。各所有者様によって、設備・仕様・内装などが変更されている場合もございます。
- ※ペット飼育やSOHO利用の可否に関しては、建物の管理規約で可能になっていても、お部屋の所有者様によって禁止の場合もございますのでご注意下さい。
- 詳細はお電話、メール、LINEにてスタッフまでご相談下さい。
周辺環境
カスタリア船橋のお問い合わせ
最新の空室情報・詳細情報などお気軽にお問い合わせください。
- お問い合わせは24時間OK!
- 03-6279-2032
- 営業時間:10:00~20:00































