この物件の特徴
この物件の設備
★インターネット無料★
★☆★建物の特徴★☆★
ゴミ置き場/インターネット無料
★☆★お部屋の特徴★☆★
システムキッチン/洗濯機室内/シューズボックス/照明/フローリング/バルコニー/エアコン/モニター付きインターホン/24時間換気システム
(※上記は部屋により異なる場合がございます)
★☆★近くのお店★☆★
セブンイレブン180m/オオゼキ350m
★☆★近くの道路★☆★
千葉街道
千葉県市川市市川南1丁目エリアに建つ賃貸マンション「PARK SQUARE 市川」のご紹介です。
1989年6月築、地上2階建て、総戸数29戸の鉄筋コンクリート造マンションです。
モニター付インターホンがあるので防犯面も安心です。
住戸には、シューズボックス、エアコン、システムキッチンなど生活に便利な設備が完備されています。
インターネット無料なのも嬉しいポイントですね。
周辺地図
物件概要
| 物件種別 | 賃貸マンション |
|---|---|
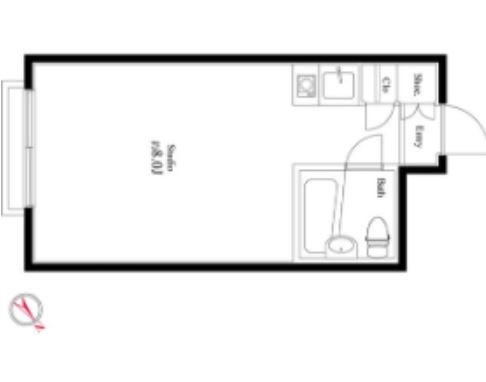
| 間取り・専有面積 | 1R / 19.5m²~ |
| 築年月 | 1989年06月 |
| 規模・構造 | 鉄筋コンクリート造 2階建て |
| 駐車場 | |
| 設備 | 宅配ボックス |
| 特徴 | 敷金・礼金0 , 保証人不要 , インターネット無料 |
| 取引態様 | 媒介 |
| 自社物件番号 | C-1204 |
- ※当サイトは、建物に関するサイトとなっております。
条件等は、お部屋ごとに異なる場合がございますので、お部屋の事に関しては、必ず募集条件を直接ご確認ください - ※分譲賃貸マンションの場合、お部屋によって家賃・管理費・敷金・礼金など賃貸借契約に関する設定が様々です。各所有者様によって、設備・仕様・内装などが変更されている場合もございます。
- ※ペット飼育やSOHO利用の可否に関しては、建物の管理規約で可能になっていても、お部屋の所有者様によって禁止の場合もございますのでご注意下さい。
- 詳細はお電話、メール、LINEにてスタッフまでご相談下さい。
周辺環境
PARK SQUARE 市川のお問い合わせ
最新の空室情報・詳細情報などお気軽にお問い合わせください。
- お問い合わせは24時間OK!
- 03-6279-2032
- 営業時間:10:00~20:00






















