この物件の特徴
この物件の設備
★ペット飼育可★宅配ボックス★
★☆★建物の特徴★☆★
モニター付きオートロック/宅配ボックス/防犯カメラ/分譲/エレベーター/BS/CS/24時間ゴミ捨て/二人入居可/デザイナーズ/外壁タイル張り/インターネット無料
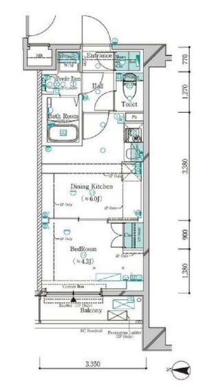
★☆★お部屋の特徴★☆★
システムキッチン/バス・トイレ別/浴室換気乾燥暖房機/温水洗浄便座/脱衣室/独立洗面台/室内洗濯機置き場/フローリング/エアコン/シューズボックス/2口コンロ/バルコニー/カラーモニター付きインターホン/クローゼット/ペット飼育可
(※上記は部屋により異なる場合がございます)
★☆★近くのお店★☆★
いせみつ290m/まいばすけっと280m/ファミリーマート400m
★☆★近くの通り★☆★
哲学堂通り
落合南長崎エリアに建つ分譲賃貸マンション。
周辺は同規模の集合住宅や戸建てが建ち並ぶ落ち着いた住環境となっております。建物から歩いてすぐの場所に哲学堂公園があり、四季折々の豊かな自然の風景を楽しむことができます。1DKと1LDKを揃えており、シングルやディンクスのライフスタイルに最適です。
敷地内には24時間ゴミ捨てが可能なゴミ置き場、不在時の荷物の受け取りに重宝する宅配ボックスが整っているほか、防犯面ではオートロック・モニター付きインターホン・防犯カメラが設置され、居住者の安全にも配慮しています
周辺地図
物件概要
| 物件種別 | 賃貸マンション |
|---|---|
| 間取り・専有面積 | 1DK / 25.79m²~ |
| 築年月 | 2021年09月 |
| 規模・構造 | 鉄筋コンクリート造 5階建て |
| 駐車場 | |
| 設備 | オートロック , 光ファイバー対応 , 宅配ボックス , 浴室換気乾燥機 , ウォシュレット , 玄関ダブルロック , ディンプルキー , 独立洗面台 , 脱衣室 , バストイレ別 |
| 特徴 | 敷金・礼金0 , 二人入居可 , 分譲賃貸 , 保証人不要 , インターネット無料 , 1DK以上 , レジデンス , 築浅 |
| 取引態様 | 媒介 |
| 自社物件番号 | MC-2891 |
- ※当サイトは、建物に関するサイトとなっております。
条件等は、お部屋ごとに異なる場合がございますので、お部屋の事に関しては、必ず募集条件を直接ご確認ください - ※分譲賃貸マンションの場合、お部屋によって家賃・管理費・敷金・礼金など賃貸借契約に関する設定が様々です。各所有者様によって、設備・仕様・内装などが変更されている場合もございます。
- ※ペット飼育やSOHO利用の可否に関しては、建物の管理規約で可能になっていても、お部屋の所有者様によって禁止の場合もございますのでご注意下さい。
- 詳細はお電話、メール、LINEにてスタッフまでご相談下さい。
周辺環境
ガリシア新宿西落合Ⅱのお問い合わせ
最新の空室情報・詳細情報などお気軽にお問い合わせください。
- お問い合わせは24時間OK!
- 03-6279-2032
- 営業時間:10:00~20:00































