この物件の特徴
この物件の設備
★ペット可★浴室乾燥★水商売可★
★☆★建物の特徴★☆★
モニター付きオートロック/宅配ボックス/エレベーター/防犯カメラ/ディンプルキー/ゴミ置き場/CS/BS
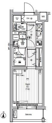
★☆★お部屋の特徴★☆★
システムキッチン/バス・トイレ別/独立洗面台/脱衣所/洗濯機室内/浴室乾燥機/温水洗浄便座/クローゼット/シューズボックス/照明/フローリング/バルコニー/エアコン/モニター付きインターホン/24時間換気システム
(※上記は部屋により異なる場合がございます)
★☆★近くのお店★☆★
セブンイレブン250m/オーガニックファクトリー170m
★☆★近くの道路★☆★
駒留通り
人気のシリーズ系デザイナーズマンション『プレミアムキューブ世田谷#mo』のご紹介です。
押切もえさんプロデュースのこちらの物件は外観・内装共にとてもお洒落に仕上がっております。
アクセス面では東急世田谷線「松陰神社前駅」徒歩6分、他にも東急田園都市線「駒沢大学駅」も徒歩圏内となっております♪
閑静な住宅地に位置し、落ち着いた住環境で御座います。
近隣にはコンビニは勿論、世田谷エリアらしいお洒落なお店も多数あり、とても便利な周辺環境となっております。
周辺地図
物件概要
| 物件種別 | 賃貸マンション |
|---|---|
| 間取り・専有面積 | 1K / 25.51m²~ |
| 築年月 | 2020年09月 |
| 規模・構造 | 鉄筋コンクリート造 4階建て |
| 駐車場 | |
| 設備 | オートロック , 宅配ボックス , 追焚き機能付 , オートバス , 浴室換気乾燥機 , ウォシュレット , ディンプルキー , 独立洗面台 , バストイレ別 |
| 特徴 | デザイナーズ , ペット相談可 , 分譲賃貸 , 保証人不要 , インターネット無料 , レジデンス |
| 取引態様 | 媒介 |
| 自社物件番号 | C-8821 |
- ※当サイトは、建物に関するサイトとなっております。
条件等は、お部屋ごとに異なる場合がございますので、お部屋の事に関しては、必ず募集条件を直接ご確認ください - ※分譲賃貸マンションの場合、お部屋によって家賃・管理費・敷金・礼金など賃貸借契約に関する設定が様々です。各所有者様によって、設備・仕様・内装などが変更されている場合もございます。
- ※ペット飼育やSOHO利用の可否に関しては、建物の管理規約で可能になっていても、お部屋の所有者様によって禁止の場合もございますのでご注意下さい。
- 詳細はお電話、メール、LINEにてスタッフまでご相談下さい。
周辺環境
プレミアムキューブ世田谷#moのお問い合わせ
最新の空室情報・詳細情報などお気軽にお問い合わせください。
- お問い合わせは24時間OK!
- 03-6279-2032
- 営業時間:10:00~20:00


































