この物件の特徴
この物件の設備
★分譲★保証人不要★水商売可★
★☆★建物の特徴★☆★
モニター付きオートロック/宅配ボックス/エレベーター/防犯カメラ/ディンプルキー/ゴミ置き場
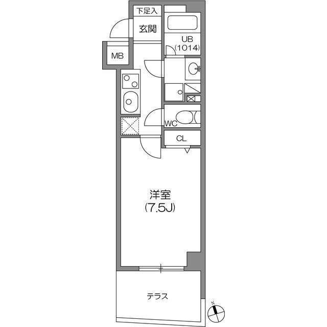
★☆★お部屋の特徴★☆★
システムキッチン/バス・トイレ別/独立洗面台/脱衣所/洗濯機室内/浴室乾燥機/温水洗浄便座/クローゼット/シューズボックス/照明/フローリング/バルコニー/エアコン/モニター付きインターホン/24時間換気システム
(※上記は部屋により異なる場合がございます)
★☆★近くのお店★☆★
京王ストア750m/セブンイレブン750m
★☆★近くの道路★☆★
環八通り
★☆★ナイトワークでも賃貸情報満載★☆★
人気のペット可マンション!便利な独立洗面台付き♪
オートロック、システムキッチン、バルコニー、浴室乾燥機、宅配ボックス完備!
モニター付きインターホン・防犯カメラも完備しており、女性の方も安心のセキュリティー。
夜職・ナイトワーク・ナイトワーカー・ホステス・キャバ嬢・審査柔軟に対応!初期費用など気軽にご相談下さい。
周辺地図
物件概要
| 物件種別 | 賃貸マンション |
|---|---|
| 間取り・専有面積 | 1K / 21.09m²~ |
| 築年月 | 2006年03月 |
| 規模・構造 | 鉄筋コンクリート造 5階建て |
| 駐車場 | |
| 設備 | オートロック , 宅配ボックス , 浴室換気乾燥機 , ウォシュレット , 独立洗面台 , バストイレ別 |
| 特徴 | デザイナーズ , ペット相談可 , 二人入居可 , 分譲賃貸 , 保証人不要 |
| 取引態様 | 媒介 |
| 自社物件番号 | I-1233 |
- ※当サイトは、建物に関するサイトとなっております。
条件等は、お部屋ごとに異なる場合がございますので、お部屋の事に関しては、必ず募集条件を直接ご確認ください - ※分譲賃貸マンションの場合、お部屋によって家賃・管理費・敷金・礼金など賃貸借契約に関する設定が様々です。各所有者様によって、設備・仕様・内装などが変更されている場合もございます。
- ※ペット飼育やSOHO利用の可否に関しては、建物の管理規約で可能になっていても、お部屋の所有者様によって禁止の場合もございますのでご注意下さい。
- 詳細はお電話、メール、LINEにてスタッフまでご相談下さい。
周辺環境
ガーラプレイス八幡山壱番館のお問い合わせ
最新の空室情報・詳細情報などお気軽にお問い合わせください。
- お問い合わせは24時間OK!
- 03-6279-2032
- 営業時間:10:00~20:00




























