この物件の特徴
この物件の設備
★ペット可★築浅★
★☆★建物の特徴★☆★
ガス(都市ガス)/下水(公共下水)/水道(公営)/ネット使用料込/ペット飼育可/防犯カメラ/分譲/オートロック/モニタ付オートロック/ダブルロック/ディンプルキー/ダブルディンプルキー/管理形態(巡回)/エレベーター/24時間ゴミ出し可/風除室/敷地内ゴミ置き場/宅配BOX/BS/CS/光ファイバー/駐輪場
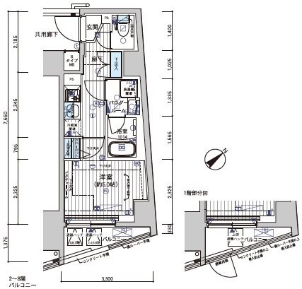
★☆★お部屋の特徴★☆★
システムキッチン/2口コンロ/ガスキッチン/バス・トイレ別/浴室乾燥/脱衣所/温水洗浄便所/洗面所独立/洗面化粧台/エアコン/照明付き/TVインターホン/ガス給湯/24時間換気システム/室内洗濯機置場/洗濯機置場/クローゼット/シューズボックス/ダウンライト/人感照明センサー
(※上記は部屋により異なる場合がございます)
★☆★近くのお店★☆★
ローソン180m/セブンイレブン450m
★☆★近くの道路★☆★
中原街道
東急目黒線「不動前駅」徒歩10分に建つ分譲賃貸マンション「メインステージ不動前Ⅱ」
2021年2月築、地上11階建のマンション(RC)です。
外観は白色を基調とし、シンプルかつお洒落なデザインとなります。
防犯カメラ、オートロック、モニタ付インターホンがあるので安心のセキュリティ。
お部屋には浴室乾燥機、温水洗浄便座、独立洗面台など生活に便利な設備が揃っています。
日中、荷物の受け取りが難しい方には嬉しい宅配ボックスがあるのも魅力的です。
「不動前駅通り商店街」もあり、電気屋や書店など一通りのお店が揃っており便利です。スーパーで買えないものは商店街で揃える事が出来ます。
周辺地図
物件概要
| 物件種別 | 賃貸マンション |
|---|---|
| 間取り・専有面積 | 1K / 21.77m²~ |
| 築年月 | 2021年02月 |
| 規模・構造 | 鉄筋コンクリート造 11階建て |
| 駐車場 | |
| 設備 | オートロック , 宅配ボックス , 玄関ダブルロック , ディンプルキー , バストイレ別 |
| 特徴 | デザイナーズ , ペット相談可 , 分譲賃貸 , 保証人不要 , インターネット無料 , 1DK以上 , レジデンス , 築浅 |
| 取引態様 | 媒介 |
| 自社物件番号 | MB-9584 |
- ※当サイトは、建物に関するサイトとなっております。
条件等は、お部屋ごとに異なる場合がございますので、お部屋の事に関しては、必ず募集条件を直接ご確認ください - ※分譲賃貸マンションの場合、お部屋によって家賃・管理費・敷金・礼金など賃貸借契約に関する設定が様々です。各所有者様によって、設備・仕様・内装などが変更されている場合もございます。
- ※ペット飼育やSOHO利用の可否に関しては、建物の管理規約で可能になっていても、お部屋の所有者様によって禁止の場合もございますのでご注意下さい。
- 詳細はお電話、メール、LINEにてスタッフまでご相談下さい。
周辺環境
メインステージ不動前Ⅱのお問い合わせ
最新の空室情報・詳細情報などお気軽にお問い合わせください。
- お問い合わせは24時間OK!
- 03-6279-2032
- 営業時間:10:00~20:00































