この物件の特徴
この物件の設備
★オートロック★宅配ボックス★
★☆★建物の特徴★☆★
モニター付きオートロック/宅配ボックス/エレベーター/防犯カメラ/ディンプルキー/ゴミ置き場/CATVアンテナ
★☆★お部屋の特徴★☆★
システムキッチン/バス・トイレ別/独立洗面台/脱衣所/洗濯機室内/温水洗浄便座/クローゼット/シューズボックス/照明/フローリング/バルコニー/エアコン/モニター付きインターホン/24時間換気システム
(※上記は部屋により異なる場合がございます)
★☆★近くのお店★☆★
まいばすけっと大森西4丁目店251m/ローソンストア100大森西店215m
★☆★近くの道路★☆★
第一京浜
大森町エリアに建つ分譲賃貸マンション。建物1階にはコンビニがあり、毎日の買い物が便利です。白と黒のモノトーンデザインの外観やエントランスホールといった共用部がスタイリッシュな建物の雰囲気を演出しています。各住戸の室内はアクセントクロスを使用したナチュラルテイストの内装で設えており、おしゃれで爽やかな雰囲気の住空間です。全住戸にガスシステムキッチン・独立洗面台・浴室乾燥機・洗浄便座・エアコンを、更に1DKと2LDKの住戸には追焚バスを備えており、充実した室内設備が居住者の快適な生活をサポートします。
周辺地図
物件概要
| 物件種別 | 賃貸マンション |
|---|---|
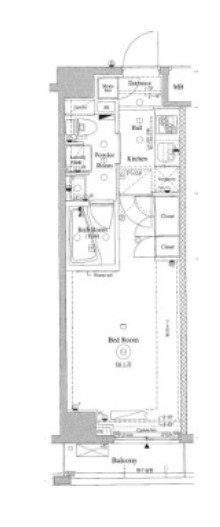
| 間取り・専有面積 | 1K / 25.52m²~ |
| 築年月 | 2015年06月 |
| 規模・構造 | 鉄筋コンクリート造 6階建て |
| 駐車場 | |
| 設備 | オートロック , 宅配ボックス , ウォシュレット , ディンプルキー , 独立洗面台 , 脱衣室 , バストイレ別 |
| 特徴 | ペット相談可 , 分譲賃貸 , 保証人不要 |
| 取引態様 | 媒介 |
| 自社物件番号 | MB-9697 |
- ※当サイトは、建物に関するサイトとなっております。
条件等は、お部屋ごとに異なる場合がございますので、お部屋の事に関しては、必ず募集条件を直接ご確認ください - ※分譲賃貸マンションの場合、お部屋によって家賃・管理費・敷金・礼金など賃貸借契約に関する設定が様々です。各所有者様によって、設備・仕様・内装などが変更されている場合もございます。
- ※ペット飼育やSOHO利用の可否に関しては、建物の管理規約で可能になっていても、お部屋の所有者様によって禁止の場合もございますのでご注意下さい。
- 詳細はお電話、メール、LINEにてスタッフまでご相談下さい。
周辺環境
アクサス大森西アジールコートのお問い合わせ
最新の空室情報・詳細情報などお気軽にお問い合わせください。
- お問い合わせは24時間OK!
- 03-6279-2032
- 営業時間:10:00~20:00


























