この物件の特徴
この物件の設備
★歌舞伎町徒歩圏内★ペット飼育可能★水商売可★
★☆★建物の特徴★☆★
オートロック/エレベーター/防犯カメラ/ゴミ置き場/宅配BOX/インターネット無料/ペット相談/CS/CATV/BS
★☆★お部屋の特徴★☆★
都市ガス/システムキッチン/バス・トイレ別/洗濯機室内/追い焚き/浴室乾燥機/クローゼット/照明/フローリング/バルコニー/エアコン/モニター付きインターホン/24時間換気システム/マルチメディアコンセント/人感照明センサー/24時間緊急通報システム/電子キー
(※上記は部屋により異なる場合がございます)
★☆★近くのお店★☆★
ローソン220m/セブンイレブン400m
★☆★近くの道路★☆★
大久保通り
JR中央・総武線「大久保駅」徒歩7分。大久保通りを1本入った落ち着きのある閑静な住宅地。
「新宿駅」も徒歩圏内と利便性の良い立地環境です。
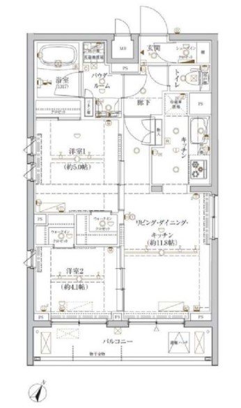
今回のお部屋は追い焚き機能付きユニットバスやエアコン2台、50.73m²のゆとりある居住の採用などワンランク上の設備、仕様となっております。
共用部にはオートロック、防犯カメラ、宅配ボックスなども搭載した快適な住空間です。
周辺は徒歩2分圏内にスーパーマーケットやコンビニエンスストアが揃う生活環境。
水商売の方是非ご相談ください。
周辺地図
物件概要
| 物件種別 | 賃貸マンション |
|---|---|
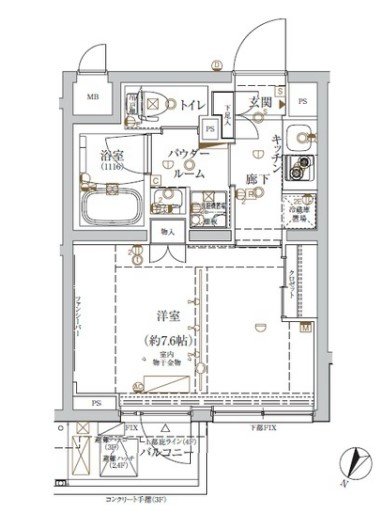
| 間取り・専有面積 | 1LDK / 50.73m²~ |
| 築年月 | 2020年03月 |
| 規模・構造 | 鉄筋コンクリート造 4階建て |
| 駐車場 | |
| 設備 | オートロック , 宅配ボックス , 追焚き機能付 , 浴室換気乾燥機 , ウォシュレット , 独立洗面台 , バストイレ別 |
| 特徴 | ペット相談可 , 二人入居可 , 分譲賃貸 , 保証人不要 , インターネット無料 , 1DK以上 , レジデンス , 築浅 |
| 取引態様 | 媒介 |
| 自社物件番号 | MB-9803 |
- ※当サイトは、建物に関するサイトとなっております。
条件等は、お部屋ごとに異なる場合がございますので、お部屋の事に関しては、必ず募集条件を直接ご確認ください - ※分譲賃貸マンションの場合、お部屋によって家賃・管理費・敷金・礼金など賃貸借契約に関する設定が様々です。各所有者様によって、設備・仕様・内装などが変更されている場合もございます。
- ※ペット飼育やSOHO利用の可否に関しては、建物の管理規約で可能になっていても、お部屋の所有者様によって禁止の場合もございますのでご注意下さい。
- 詳細はお電話、メール、LINEにてスタッフまでご相談下さい。
周辺環境
クレイシア新宿ノースのお問い合わせ
最新の空室情報・詳細情報などお気軽にお問い合わせください。
- お問い合わせは24時間OK!
- 03-6279-2032
- 営業時間:10:00~20:00



























