この物件の特徴
この物件の設備
★ペット可★インターネット無料★水商売相談可★
★☆★建物の特徴★☆★
都市ガス/ディンプルキー/エレベータ/宅配ボックス/外観タイル張り/モニター付きオートロック/分譲タイプ/24時間ゴミ出し可/築浅/インターネット無料/BS/CS/防犯カメラ
★☆★お部屋の特徴★☆★
2口ガスコンロ/システムキッチン/バス・トイレ別/シャワー/温水洗浄便座/洗面所/洗面台/洗濯機置場/室内洗濯機置場/浴室乾機/エアコン/フローリング/24時間換気システム/収納スペース/モニター付きインターホン/ペット可
(※上記は部屋により異なる場合がございます)
★☆★近くのお店★☆★
ローソン38m/セブンイレブン240m
★☆★近くの道路★☆★
春日通り
上野エリアからはシリーズ系分譲マンション『リルシア新御徒町』のご紹介です。
都営大江戸線『新御徒町駅』徒歩3分。その他にも複数駅が徒歩圏内となっており大変、好立地となっておいます。
お洒落で綺麗な外観に加えて、共用部・室内共も充実の設備となっております。
周辺にはコンビニは勿論、複数の飲食店もあるので日々のお買い物にも便利です。
水商売やナイトワークの方もご相談可能。
お問い合わせお待ちしております。
周辺地図
物件概要
| 物件種別 | 賃貸マンション |
|---|---|
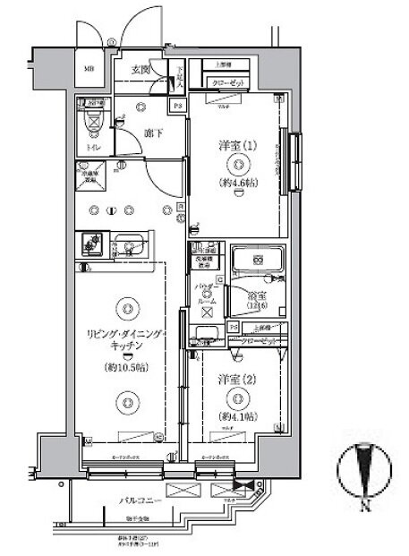
| 間取り・専有面積 | 2LDK / 45.07m²~ |
| 築年月 | 2021年11月 |
| 規模・構造 | 鉄筋コンクリート造 12階建て |
| 駐車場 | |
| 設備 | オートロック , 光ファイバー対応 , 宅配ボックス , 追焚き機能付 , 浴室換気乾燥機 , ウォシュレット , 玄関ダブルロック , ディンプルキー , 独立洗面台 , 脱衣室 , バストイレ別 |
| 特徴 | デザイナーズ , ペット相談可 , 二人入居可 , 分譲賃貸 , 保証人不要 , インターネット無料 , 1DK以上 |
| 取引態様 | 媒介 |
| 自社物件番号 | C-8124 |
- ※当サイトは、建物に関するサイトとなっております。
条件等は、お部屋ごとに異なる場合がございますので、お部屋の事に関しては、必ず募集条件を直接ご確認ください - ※分譲賃貸マンションの場合、お部屋によって家賃・管理費・敷金・礼金など賃貸借契約に関する設定が様々です。各所有者様によって、設備・仕様・内装などが変更されている場合もございます。
- ※ペット飼育やSOHO利用の可否に関しては、建物の管理規約で可能になっていても、お部屋の所有者様によって禁止の場合もございますのでご注意下さい。
- 詳細はお電話、メール、LINEにてスタッフまでご相談下さい。
周辺環境
リルシア新御徒町のお問い合わせ
最新の空室情報・詳細情報などお気軽にお問い合わせください。
- お問い合わせは24時間OK!
- 03-6279-2032
- 営業時間:10:00~20:00




























