この物件の特徴
この物件の設備
★独立洗面台★温水洗浄便座★
★☆★建物の特徴★☆★
モニター付きオートロック/宅配ボックス/エレベーター/防犯カメラ/ディンプルキー/ゴミ置き場/CS/BS/CATV
★☆★お部屋の特徴★☆★
システムキッチン/バス・トイレ別/独立洗面台/脱衣所/洗濯機室内/浴室乾燥機/温水洗浄便座/クローゼット/シューズボックス/照明/フローリング/バルコニー/エアコン/モニター付きインターホン/24時間換気システム
(※上記は部屋により異なる場合がございます)
★☆★近くのお店★☆★
オーケー150m/ファミリーマート250m
★☆★近くの道路★☆★
新青梅街道
東京都中野区鷺宮4丁目、歌舞伎町まで直通な西武新宿線「鷺ノ宮」駅徒歩6分の分譲マンション「リルシア中野鷺宮」
安心のTVモニター付きオートロックに24時間荷物の受け取り可能な宅配ボックス、室内設備はバス・トイレ別、浴室乾燥機、独立洗面台、クローゼット収納、エアコン完備、温水洗浄便座と優れた室内設備。
ペット可能なお部屋も多数ご紹介可能で、キャバクラ・ナイトワーク・夜職の審査も柔軟に対応可能。
周辺地図
物件概要
| 物件種別 | 賃貸マンション |
|---|---|
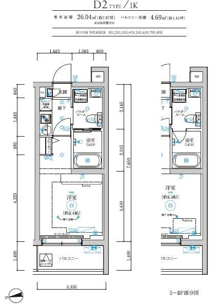
| 間取り・専有面積 | 1K / 26.04m²~ |
| 築年月 | 2024年10月 |
| 規模・構造 | 鉄筋コンクリート造 8階建て |
| 駐車場 | |
| 設備 | オートロック , 光ファイバー対応 , 宅配ボックス , 浴室換気乾燥機 , ウォシュレット , 玄関ダブルロック , ディンプルキー , 独立洗面台 , 脱衣室 , バストイレ別 |
| 特徴 | ペット相談可 , 分譲賃貸 , 保証人不要 , インターネット無料 , 築浅 |
| 取引態様 | 媒介 |
| 自社物件番号 | MC-2552 |
- ※当サイトは、建物に関するサイトとなっております。
条件等は、お部屋ごとに異なる場合がございますので、お部屋の事に関しては、必ず募集条件を直接ご確認ください - ※分譲賃貸マンションの場合、お部屋によって家賃・管理費・敷金・礼金など賃貸借契約に関する設定が様々です。各所有者様によって、設備・仕様・内装などが変更されている場合もございます。
- ※ペット飼育やSOHO利用の可否に関しては、建物の管理規約で可能になっていても、お部屋の所有者様によって禁止の場合もございますのでご注意下さい。
- 詳細はお電話、メール、LINEにてスタッフまでご相談下さい。
周辺環境
リルシア中野鷺宮のお問い合わせ
最新の空室情報・詳細情報などお気軽にお問い合わせください。
- お問い合わせは24時間OK!
- 03-6279-2032
- 営業時間:10:00~20:00





























