この物件の特徴
この物件の設備
★オートロック★独立洗面台★
★☆★建物の特徴★☆★
モニター付きオートロック/宅配ボックス/エレベーター/敷地内ゴミ置場/防犯カメラ/CATV/BS/CS/都市ガス/公共下水/外観タイル張り/光ファイバー/給湯/24時間ゴミ出し可能/ペット足洗い場/ディンプルキー/ダブルロック/内廊下
★☆★お部屋の特徴★☆★
システムキッチン/バス・トイレ別/浴室換気乾燥暖房機/フローリング/エアコン/室内洗濯機置き場/シューズボックス/グリル付き3口コンロ/バルコニー/温水洗浄便座/独立洗面化粧台/お湯張り・追炊き機能/カラーモニター付きインターホン/クローゼット/ウォークインクローゼット/床暖房/インターネット無料/ペット相談
(※上記は部屋により異なる場合がございます)
★☆★近くのお店★☆★
セブンイレブン30m/ファミリーマート150m
★☆★近くの道路★☆★
六本木通り
高級賃貸オープンレジデンシアシリーズ「343レジデンス西麻布」
高級住宅街として知られる港区西麻布エリアに建つ、鉄筋コンクリート造り地上5階地下1階建ての物件。
総戸数14戸、全住戸角部屋設計に加え共用部は内廊下仕様のためプライベートな空間を感じられます。
お部屋は1LDK〜3LDKまであり、全居室にエアコンを設置し、床暖房・浄水器なども標準装備。インターネット無料・ペット飼育可能・SOHO可能と様々なライフスタイルにも対応します。
また、オートロック・共用部やエレベーターに設置された複数の防犯カメラ・モニター付きインターホン・24時間対応のALSOKセキュリティシステム・防犯性の高いダブルロック玄関など、この土地に相応しいハイグレードな設備とハイセキュリティシステムが安らぎの空間を提供してくれます。
更に、入居時/更新時にトイレ・バスルーム・エアコン・キッチン等を掃除してくれる「プロのお掃除サービス」が付いており、永く快適に住まうことができます。
交通は東京メトロ日比谷線「広尾駅」徒歩8分、東京メトロ南北線・都営大江戸線「麻布十番駅」徒歩10分が利用可能。
渋谷・新宿・東京・横浜など主要駅へ10〜30分前後で行くことができ、仕事からプライベートまで非常に便利なアクセス性を実感できるでしょう。
周辺地図
物件概要
| 物件種別 | 賃貸マンション |
|---|---|
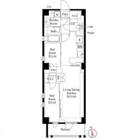
| 間取り・専有面積 | 2LDK / 54.29m²~ |
| 築年月 | 2025年01月 |
| 規模・構造 | 鉄筋コンクリート造 5階建て |
| 駐車場 | あり |
| 設備 | オートロック , 光ファイバー対応 , 宅配ボックス , 追焚き機能付 , オートバス , 浴室換気乾燥機 , ウォシュレット , シャンプードレッサー , 玄関ダブルロック , ディンプルキー , 独立洗面台 , 脱衣室 , バストイレ別 |
| 特徴 | 敷金・礼金0 , ペット相談可 , 二人入居可 , 分譲賃貸 , 保証人不要 , インターネット無料 , 1DK以上 , レジデンス , 築浅 |
| 取引態様 | 媒介 |
| 自社物件番号 | MA-581 |
- ※当サイトは、建物に関するサイトとなっております。
条件等は、お部屋ごとに異なる場合がございますので、お部屋の事に関しては、必ず募集条件を直接ご確認ください - ※分譲賃貸マンションの場合、お部屋によって家賃・管理費・敷金・礼金など賃貸借契約に関する設定が様々です。各所有者様によって、設備・仕様・内装などが変更されている場合もございます。
- ※ペット飼育やSOHO利用の可否に関しては、建物の管理規約で可能になっていても、お部屋の所有者様によって禁止の場合もございますのでご注意下さい。
- 詳細はお電話、メール、LINEにてスタッフまでご相談下さい。
周辺環境
343レジデンス西麻布のお問い合わせ
最新の空室情報・詳細情報などお気軽にお問い合わせください。
- お問い合わせは24時間OK!
- 03-6279-2032
- 営業時間:10:00~20:00







































