この物件の特徴
この物件の設備
★ペット可★追い焚き機能★水商売相談可★
★☆★建物の特徴★☆★
ペット可/モニター付きオートロック/宅配ボックス/エレベーター/防犯カメラ/ディンプルキー/ゴミ置き場/インターネット無料/築浅
★☆★お部屋の特徴★☆★
カウンターシステムキッチン/3口ガスコンロ/バス・トイレ別/独立洗面台/脱衣所/追い焚き機能/洗濯機室内/浴室乾燥機/温水洗浄便座/クローゼット/シューズボックス/照明/フローリング/バルコニー/エアコン/モニター付きインターホン/24時間換気システム
(※上記は部屋により異なる場合がございます)
★☆★近くのお店★☆★
セブンイレブン100m/ファミリーマート100m/まいばすけっと400m
★☆★近くの道路★☆★
靖国通り
千代田区東神田2丁目、高級賃貸レジデンス「ズーム神田(ZOOM神田)」のご紹介です。
2025年3月築、地上14階建ての鉄筋コンクリート(RC造)マンション。
外観はタイル張りで重厚感のあるスタイリッシュなデザインです。
オートロック・防犯カメラ・TVモニター付きインターホンがありますので、防犯面でも安心できます。
宅配ボックス・メールボックス・専用ゴミ捨て場もありますので、日々の生活も便利です。
また、インターネット使用料無料で毎月の固定費用を抑えらます。
周辺には、スーパーやコンビニ、商業施設などもあり日常の生活にも大変便利です。
希少な2LDKタイプは部屋数がかなり少ない為早いもの勝ちとなります。
周辺地図
物件概要
| 物件種別 | 賃貸マンション |
|---|---|
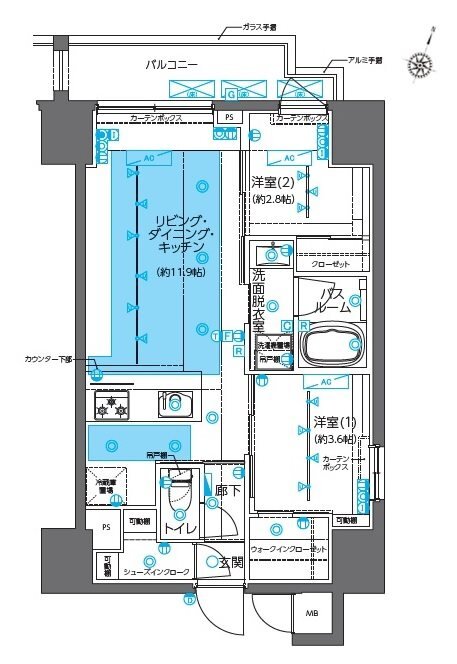
| 間取り・専有面積 | 2LDK / 45.25m²~ |
| 築年月 | 2025年03月 |
| 規模・構造 | 鉄筋コンクリート造 14階建て |
| 駐車場 | |
| 設備 | オートロック , 光ファイバー対応 , 宅配ボックス , 追焚き機能付 , 浴室換気乾燥機 , ウォシュレット , 玄関ダブルロック , ディンプルキー , 独立洗面台 , 脱衣室 , バストイレ別 |
| 特徴 | デザイナーズ , ペット相談可 , 二人入居可 , 分譲賃貸 , 保証人不要 , インターネット無料 , 1DK以上 , 築浅 |
| 取引態様 | 媒介 |
| 自社物件番号 | C-7583 |
- ※当サイトは、建物に関するサイトとなっております。
条件等は、お部屋ごとに異なる場合がございますので、お部屋の事に関しては、必ず募集条件を直接ご確認ください - ※分譲賃貸マンションの場合、お部屋によって家賃・管理費・敷金・礼金など賃貸借契約に関する設定が様々です。各所有者様によって、設備・仕様・内装などが変更されている場合もございます。
- ※ペット飼育やSOHO利用の可否に関しては、建物の管理規約で可能になっていても、お部屋の所有者様によって禁止の場合もございますのでご注意下さい。
- 詳細はお電話、メール、LINEにてスタッフまでご相談下さい。
周辺環境
ズーム神田のお問い合わせ
最新の空室情報・詳細情報などお気軽にお問い合わせください。
- お問い合わせは24時間OK!
- 03-6279-2032
- 営業時間:10:00~20:00


































