この物件の特徴
この物件の設備
★ペット可★インターネット無料★
★☆★建物の特徴★☆★
都市ガス/モニター付きオートロック/宅配ボックス/エレベーター/防犯カメラ/ディンプルキー/ダブルロック/敷地内ゴミ置き場/光ファイバー/BS/CS/CATV/駐輪場/バイク置き場/分譲
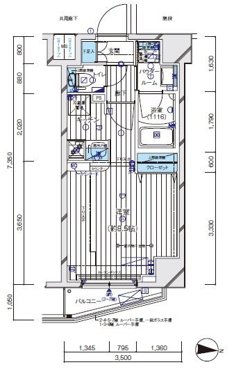
★☆★お部屋の特徴★☆★
システムキッチン/2口ガスコンロ/バス・トイレ別/独立洗面台/脱衣所/洗濯機室内/浴室乾燥機/温水洗浄便座/クローゼット/シューズボックス/照明/フローリング/バルコニー/エアコン/モニター付きインターホン/24時間換気システム/インターネット無料/ペット可
(※上記は部屋により異なる場合がございます)
★☆★近くのお店★☆★
デイリー160m/まいばすけっと250m
★☆★近くの公園★☆★
北区立北谷 端公園
東京都豊島区上池袋4丁目に位置する 「メインステージ板橋EAST」 は、JR埼京線「板橋駅」から徒歩わずか3分の好立地に佇む、2019年7月築の 高級分譲賃貸マンション です。地上8階建て・総戸数64戸のスタイリッシュなデザインで、都市型ライフスタイルに最適な住まいを提供します。
住まいの安全を守る TVモニター付きオートロック を完備し、不在時でも荷物を受け取れる 24時間対応の宅配BOX も設置されています。お部屋の設備も充実しており、バス・トイレ別、独立洗面台、浴室乾燥機、温水洗浄便座 など、快適な暮らしを支える機能が揃っています。
大切なペットと一緒に暮らせるお部屋も多数ご用意しており、ペットと共に快適な新生活をスタートできます。また、キャバクラ・ナイトワーク・夜職の方の審査にも柔軟に対応 しており、職業を問わず安心してお住まいいただけます。
周辺地図
物件概要
| 物件種別 | 賃貸マンション |
|---|---|
| 間取り・専有面積 | 1R / 25.72m²~ |
| 築年月 | 2019年07月 |
| 規模・構造 | 鉄筋コンクリート造 8階建て |
| 駐車場 | |
| 設備 | オートロック , 光ファイバー対応 , 宅配ボックス , 浴室換気乾燥機 , ウォシュレット , 玄関ダブルロック , ディンプルキー , 独立洗面台 , 脱衣室 , バストイレ別 |
| 特徴 | ペット相談可 , 分譲賃貸 , 保証人不要 , インターネット無料 , レジデンス |
| 取引態様 | 媒介 |
| 自社物件番号 | C-8824 |
- ※当サイトは、建物に関するサイトとなっております。
条件等は、お部屋ごとに異なる場合がございますので、お部屋の事に関しては、必ず募集条件を直接ご確認ください - ※分譲賃貸マンションの場合、お部屋によって家賃・管理費・敷金・礼金など賃貸借契約に関する設定が様々です。各所有者様によって、設備・仕様・内装などが変更されている場合もございます。
- ※ペット飼育やSOHO利用の可否に関しては、建物の管理規約で可能になっていても、お部屋の所有者様によって禁止の場合もございますのでご注意下さい。
- 詳細はお電話、メール、LINEにてスタッフまでご相談下さい。
周辺環境
メインステージ板橋イーストのお問い合わせ
最新の空室情報・詳細情報などお気軽にお問い合わせください。
- お問い合わせは24時間OK!
- 03-6279-2032
- 営業時間:10:00~20:00

































