この物件の特徴
この物件の設備
★独立洗面台★温水洗浄便座★水商売相談★
★☆★建物の特徴★☆★
モニター付きオートロック/宅配ボックス/エレベーター/防犯カメラ/ディンプルキー/ゴミ置き場/BS/CS/インターネット無料
★☆★お部屋の特徴★☆★
システムキッチン/バス・トイレ別/独立洗面台/脱衣所/洗濯機室内/浴室乾燥機/温水洗浄便座/クローゼット/シューズボックス/照明/フローリング/バルコニー/エアコン/モニター付きインターホン/24時間換気システム
(※上記は部屋により異なる場合がございます)
★☆★近くのお店★☆★
MEGAドン・キホーテ50m/セブンイレブン150m
★☆★近くの道路★☆★
中山道
東京都板橋区志村3丁目に位置する「メインステージ板橋志村Ⅲ」は、都営三田線「志村坂上」駅から徒歩7分という、通勤・通学にも便利なロケーションが魅力の分譲マンションです。
エントランスには安心のオートロックを完備し、さらに24時間受け取り可能な宅配ボックス付き。お仕事の時間が不規則な方でも、荷物の受け取りに困りません。
室内は、浴室乾燥機や独立洗面台、バス・トイレ別、フローリング、クローゼット収納、温水洗浄便座など、暮らしを豊かにする充実の設備が整っています。
また、ペットと暮らしたい方にもおすすめのペット可物件も多数ご紹介可能です。
キャバクラ・ナイトワーク・夜職の方にも安心してご相談いただけるよう、審査も柔軟に対応しております。
「安心して、心地よく暮らしたい」そんな方にぴったりのお部屋です。お気軽にお問い合わせください。
周辺地図
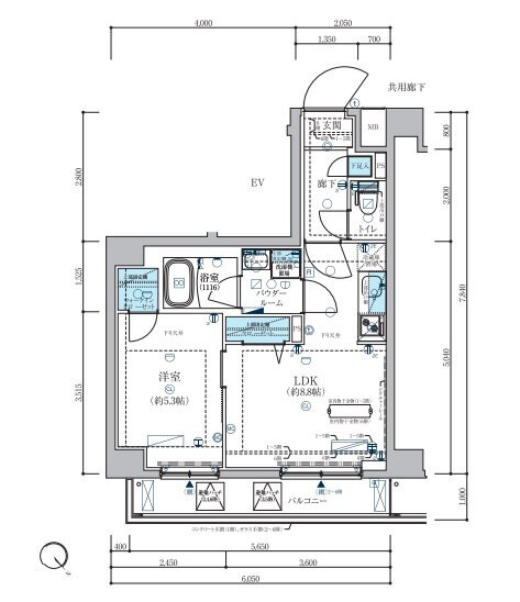
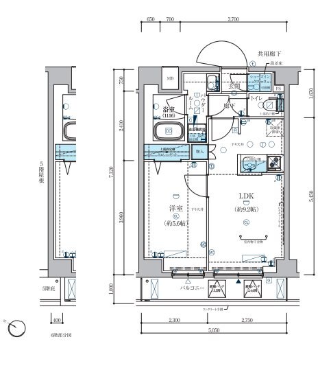
物件概要
| 物件種別 | 賃貸マンション |
|---|---|
| 間取り・専有面積 | 1LDK / 35.95m²~ |
| 築年月 | 2025年07月 |
| 規模・構造 | 鉄筋コンクリート造 7階建て |
| 駐車場 | |
| 設備 | オートロック , 光ファイバー対応 , 宅配ボックス , 浴室換気乾燥機 , ウォシュレット , 玄関ダブルロック , ディンプルキー , 独立洗面台 , 脱衣室 , バストイレ別 |
| 特徴 | 敷金・礼金0 , ペット相談可 , 二人入居可 , 分譲賃貸 , 保証人不要 , インターネット無料 , 1DK以上 , 築浅 |
| 取引態様 | 媒介 |
| 自社物件番号 | C-8039 |
- ※当サイトは、建物に関するサイトとなっております。
条件等は、お部屋ごとに異なる場合がございますので、お部屋の事に関しては、必ず募集条件を直接ご確認ください - ※分譲賃貸マンションの場合、お部屋によって家賃・管理費・敷金・礼金など賃貸借契約に関する設定が様々です。各所有者様によって、設備・仕様・内装などが変更されている場合もございます。
- ※ペット飼育やSOHO利用の可否に関しては、建物の管理規約で可能になっていても、お部屋の所有者様によって禁止の場合もございますのでご注意下さい。
- 詳細はお電話、メール、LINEにてスタッフまでご相談下さい。
周辺環境
メインステージ板橋志村Ⅲのお問い合わせ
最新の空室情報・詳細情報などお気軽にお問い合わせください。
- お問い合わせは24時間OK!
- 03-6279-2032
- 営業時間:10:00~20:00
































