この物件の特徴
この物件の設備
★オートロック★宅配ボックス★水商売可★
★☆★建物の特徴★☆★
モニター付きオートロック/宅配ボックス/駐輪場/駐車場/エレベーター/敷地内ゴミ置場/防犯カメラ/CATV/BS/CS/都市ガス/公共下水/デザイナーズ/外観タイル張り/光ファイバー/給湯/24時間ゴミ出し可能
★☆★お部屋の特徴★☆★
システムキッチン/バス・トイレ別/浴室換気乾燥暖房機/フローリング/エアコン/室内洗濯機置き場/シューズボックス/2口コンロ/バルコニー/温水洗浄便座/独立洗面台/カラーモニター付きインターホン/ダブルロックキー/クローゼット/追い焚き
(※上記は部屋により異なる場合がございます)
★☆★近くのお店★☆★
ファミリーマート280m/ココカラファイン550m
★☆★近くの道路★☆★
蔵前通り
江東区エリアからはシリーズ系分譲マンション「リルシア亀戸」のご紹介です。
各住戸の共通設備はガスシステムキッチンや浴室乾燥機、独立洗面化粧台、温水洗浄便座、24時間換気システム、エアコンなどです。IoTを採用しており、外出先からでもスマホで家電の操作が可能なので、帰宅前にエアコンや照明をつけることができます。高速1Gbpsのインターネットが入居後すぐに使えます。Free Wi-Fiでランニングコストが抑えられ、スマホやタブレット、PCでのネット環境も快適です。
周辺地図
物件概要
| 物件種別 | 賃貸マンション |
|---|---|
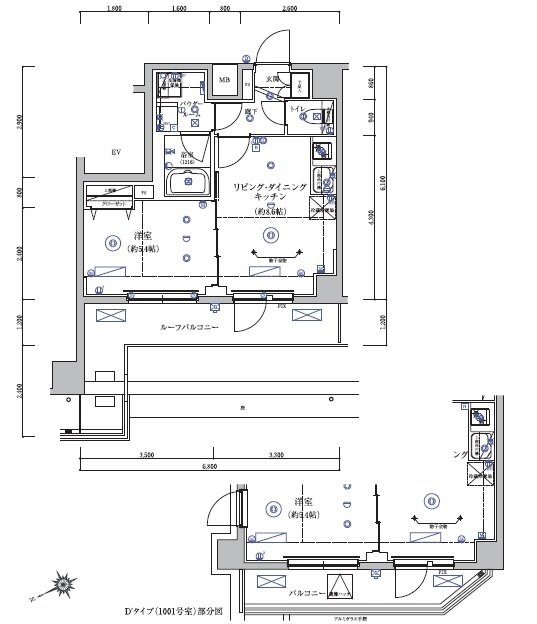
| 間取り・専有面積 | 1LDK / 36.26m²~ |
| 築年月 | 2023年11月 |
| 規模・構造 | 鉄筋コンクリート造 10階建て |
| 駐車場 | |
| 設備 | オートロック , 光ファイバー対応 , 宅配ボックス , 追焚き機能付 , 浴室換気乾燥機 , ウォシュレット , 玄関ダブルロック , ディンプルキー , 独立洗面台 , 脱衣室 , バストイレ別 |
| 特徴 | ペット相談可 , 二人入居可 , 分譲賃貸 , 保証人不要 , インターネット無料 , 1DK以上 , 築浅 |
| 取引態様 | 媒介 |
| 自社物件番号 | C-7431 |
- ※当サイトは、建物に関するサイトとなっております。
条件等は、お部屋ごとに異なる場合がございますので、お部屋の事に関しては、必ず募集条件を直接ご確認ください - ※分譲賃貸マンションの場合、お部屋によって家賃・管理費・敷金・礼金など賃貸借契約に関する設定が様々です。各所有者様によって、設備・仕様・内装などが変更されている場合もございます。
- ※ペット飼育やSOHO利用の可否に関しては、建物の管理規約で可能になっていても、お部屋の所有者様によって禁止の場合もございますのでご注意下さい。
- 詳細はお電話、メール、LINEにてスタッフまでご相談下さい。
周辺環境
リルシア亀戸のお問い合わせ
最新の空室情報・詳細情報などお気軽にお問い合わせください。
- お問い合わせは24時間OK!
- 03-6279-2032
- 営業時間:10:00~20:00




























