この物件の特徴
この物件の設備
★保証人不要★水商売相談可★
★☆★建物の特徴★☆★
デザイナーズ/分譲/モニター付きオートロック/宅配ボックス/敷地内ゴミ置き場/防犯カメラ/エレベーター/ダブルロック/ディンプルキー/駐輪場/インターネット無料/CS/BS/CATV
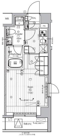
★☆★お部屋の特徴★☆★
システムキッチン/バス・トイレ別/独立洗面台/脱衣所/洗濯機室内/浴室乾燥機/追い炊き機能/温水洗浄便座/クローゼット/シューズボックス/照明/フローリング/バルコニー/エアコン/モニター付きインターホン
(※上記は部屋により異なる場合がございます)
★☆★近くのお店★☆★
セブンイレブン210m/ドミノピザ300m
★☆★近くの川★☆★
隅田川
北区豊島6丁目、高級分譲賃貸マンション「PREMIUM CUBE 王子神谷」のご紹介です。
2025年11月築、地階6建ての鉄筋コンクリート(RC造)マンション
共用部には宅配ボックスやメールボックス、専用ゴミ捨て場もありますので、日々の生活も便利です。
浴室乾燥機・独立洗面台・温水洗浄便座と室内設備も充実しております。インターネット使用料無料となっております。
愛犬・愛猫と共に暮らすことができる、ペット飼育可能物件です。
周辺地図
物件概要
| 物件種別 | 賃貸マンション |
|---|---|
| 間取り・専有面積 | 1K / 25.62m²~ |
| 築年月 | 2025年10月 |
| 規模・構造 | 鉄筋コンクリート造 6階建て |
| 駐車場 | |
| 設備 | オートロック , 光ファイバー対応 , 宅配ボックス , 追焚き機能付 , オートバス , 浴室換気乾燥機 , ウォシュレット , 玄関ダブルロック , ディンプルキー , 独立洗面台 , 脱衣室 , バストイレ別 |
| 特徴 | デザイナーズ , ペット相談可 , 二人入居可 , 分譲賃貸 , 保証人不要 , インターネット無料 , ホワイトフローリング , 築浅 |
| 取引態様 | 媒介 |
| 自社物件番号 | KK-0259 |
- ※当サイトは、建物に関するサイトとなっております。
条件等は、お部屋ごとに異なる場合がございますので、お部屋の事に関しては、必ず募集条件を直接ご確認ください - ※分譲賃貸マンションの場合、お部屋によって家賃・管理費・敷金・礼金など賃貸借契約に関する設定が様々です。各所有者様によって、設備・仕様・内装などが変更されている場合もございます。
- ※ペット飼育やSOHO利用の可否に関しては、建物の管理規約で可能になっていても、お部屋の所有者様によって禁止の場合もございますのでご注意下さい。
- 詳細はお電話、メール、LINEにてスタッフまでご相談下さい。
周辺環境
プレミアムキューブ王子神谷のお問い合わせ
最新の空室情報・詳細情報などお気軽にお問い合わせください。
- お問い合わせは24時間OK!
- 03-6279-2032
- 営業時間:10:00~20:00























