この物件の特徴
この物件の設備
★保証人不要★インターネット無料★
★☆★建物の特徴★☆★
モニター付きオートロック/エレベーター/専用ゴミ置場/防犯カメラ/BS/CS/CATV/都市ガス/公共下水/給湯/インターネット無料/分譲/駐輪場
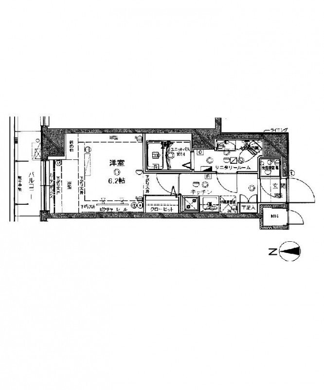
★☆★お部屋の特徴★☆★
システムキッチン/2口コンロ/バス・トイレ別/浴室換気乾燥暖房機/温水洗浄便座/独立洗面台/フローリング/エアコン/室内洗濯機置き場/シューズボックス/バルコニー/モニター付きインターホン/クローゼット
(※上記は部屋により異なる場合がございます)
★☆★近くのお店★☆★
ファミリーマート210m/セブンイレブン550m
★☆★近くの道路★☆★
甲州街道
人気のシリーズ系デザイナーズマンション『ステージファースト上北沢』のご紹介です。
京王線『上北沢駅』徒歩5分で利用可能。
駅近となっている為、大変好立地となっております。
周辺環境もコンビニや沢山の飲食店が徒歩圏にあるので大変便利です。
高級感漂う外観に加え、無料インターネットなど充実の設備。
また、オートロック・防犯カメラ・モニター付きインターホン・防犯センサー(一部住戸)など、女性でも安心の充実したセキュリティをご提供いたします。
周辺地図
物件概要
| 物件種別 | 賃貸マンション |
|---|---|
| 間取り・専有面積 | 1K / 21.9m²~ |
| 築年月 | 2006年05月 |
| 規模・構造 | 鉄筋コンクリート造 8階建て |
| 駐車場 | |
| 設備 | オートロック , 光ファイバー対応 , 浴室換気乾燥機 , ウォシュレット , 独立洗面台 , 脱衣室 , バストイレ別 |
| 特徴 | 分譲賃貸 , 保証人不要 , インターネット無料 |
| 取引態様 | 媒介 |
| 自社物件番号 | KK-0336 |
- ※当サイトは、建物に関するサイトとなっております。
条件等は、お部屋ごとに異なる場合がございますので、お部屋の事に関しては、必ず募集条件を直接ご確認ください - ※分譲賃貸マンションの場合、お部屋によって家賃・管理費・敷金・礼金など賃貸借契約に関する設定が様々です。各所有者様によって、設備・仕様・内装などが変更されている場合もございます。
- ※ペット飼育やSOHO利用の可否に関しては、建物の管理規約で可能になっていても、お部屋の所有者様によって禁止の場合もございますのでご注意下さい。
- 詳細はお電話、メール、LINEにてスタッフまでご相談下さい。
周辺環境
ステージファースト上北沢のお問い合わせ
最新の空室情報・詳細情報などお気軽にお問い合わせください。
- お問い合わせは24時間OK!
- 03-6279-2032
- 営業時間:10:00~20:00






















