この物件の特徴
この物件の設備
■ごみ出し24時間OK■宅配ボックス■オートロック
★☆★建物の特徴★☆★
モニター付きオートロック/宅配ボックス/エレベーター/防犯カメラ/ディンプルキー/敷地内ゴミ置き場/CS/BS/CATV
★☆★お部屋の特徴★☆★
システムキッチン/2口ガスコンロ/バス・トイレ別/独立洗面台/脱衣所/洗濯機室内/浴室乾燥機/温水洗浄便座/クローゼット/シューズボックス/照明/フローリング/バルコニー/エアコン/モニター付きインターホン/24時間換気システム
(※上記は部屋により異なる場合がございます)
★☆★近くのお店★☆★
デニーズ90m/ライフ230m/マクドナルド300m
★☆★近くの道路★☆★
金杉通り
台東区根岸5丁目に建つ賃貸マンション「プレール・ドゥーク東京EASTⅡ」は、東京メトロ日比谷線「三ノ輪駅」から徒歩3分という好立地に位置しています。2007年7月に完成した地上11階建て・総戸数49戸の鉄筋コンクリート造マンションで、現代的で洗練された外観デザインが印象的です。
エントランスにはオートロックやモニター付きインターホンを備え、セキュリティ面も安心。初めての一人暮らしや女性の方にも快適にお住まいいただけます。共用部には宅配ボックスが設置されており、留守中でも荷物の受け取りが可能です。駐輪場も完備しているため、休日の外出やお買い物にも便利です。
各住戸には、浴室乾燥機、エアコン、システムキッチン、収納スペースなど、日々の暮らしを支える設備が充実。機能的で使い勝手の良い居住空間が整っています。
周辺にはスーパーやコンビニなどの生活施設が徒歩圏内にそろい、日常の買い物にも困りません。JR山手線をはじめ複数の路線が利用でき、都心へのアクセスもスムーズ。通勤・通学・お出かけに便利な立地環境が魅力のマンションです。
周辺地図
物件概要
| 物件種別 | 賃貸マンション |
|---|---|
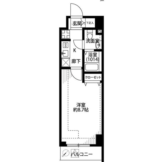
| 間取り・専有面積 | 1K / 25.57m²~ |
| 築年月 | 2007年07月 |
| 規模・構造 | 鉄筋コンクリート造 11階建て |
| 駐車場 | |
| 設備 | オートロック , 光ファイバー対応 , 追焚き機能付 , 浴室換気乾燥機 , ウォシュレット , 独立洗面台 , 脱衣室 , バストイレ別 |
| 特徴 | ペット相談可 , 分譲賃貸 , 保証人不要 , インターネット無料 |
| 取引態様 | 媒介 |
| 自社物件番号 | MA-656 |
- ※当サイトは、建物に関するサイトとなっております。
条件等は、お部屋ごとに異なる場合がございますので、お部屋の事に関しては、必ず募集条件を直接ご確認ください - ※分譲賃貸マンションの場合、お部屋によって家賃・管理費・敷金・礼金など賃貸借契約に関する設定が様々です。各所有者様によって、設備・仕様・内装などが変更されている場合もございます。
- ※ペット飼育やSOHO利用の可否に関しては、建物の管理規約で可能になっていても、お部屋の所有者様によって禁止の場合もございますのでご注意下さい。
- 詳細はお電話、メール、LINEにてスタッフまでご相談下さい。
周辺環境
プレール・ドゥーク東京イーストツーのお問い合わせ
最新の空室情報・詳細情報などお気軽にお問い合わせください。
- お問い合わせは24時間OK!
- 03-6279-2032
- 営業時間:10:00~20:00


































