この物件の特徴
この物件の設備
★保証人不要★水商売相談可★ペット相談可★
★☆★建物の特徴★☆★
モニター付きオートロック/宅配ボックス/バイク置き場/エレベーター/ディンプルキー/分譲/BS/CS/インターネット対応/敷地内ごみ置き場
★☆★お部屋の特徴★☆★
システムキッチン/バス・トイレ別/浴室換気乾燥暖房機/フローリング/エアコン/室内洗濯機置き場/シューズボックス/2口コンロ/バルコニー/温水洗浄便座/モニター付きインターホン/クローゼット/ペット可
(※上記は部屋により異なる場合がございます)
★☆★近くのお店★☆★
セブンイレブン400m/まいばすけっと140m
★☆★近くの道路★☆★
中丸通り
板橋区幸町にあるシリーズ系分譲マンション「グラントゥルース大山幸町」のご紹介です。
最寄駅は東武東上線の「大山駅」から徒歩8分。その他にも、「板橋区役所前駅」が徒歩圏内で利用出来ます。
マンション共用部には、来訪者を確認できるTVモニター付きオートロックシステムを導入し、居住者の安心・安全をしっかりと守ります。さらに、24時間いつでも荷物を受け取ることができる宅配ボックスも完備しており、忙しいライフスタイルにも対応しています。
室内設備も充実しており、バス・トイレ別、独立洗面台、浴室乾燥機、温水洗浄便座など、暮らしをより快適にする設備を標準装備。細部までこだわった設計で、日々の生活をより豊かにサポートします。
また、ペットと一緒に暮らせるお部屋も多数ご紹介可能ですので、大切な家族と共に新生活を始めたい方にもおすすめです。
周辺地図
物件概要
| 物件種別 | 賃貸マンション |
|---|---|
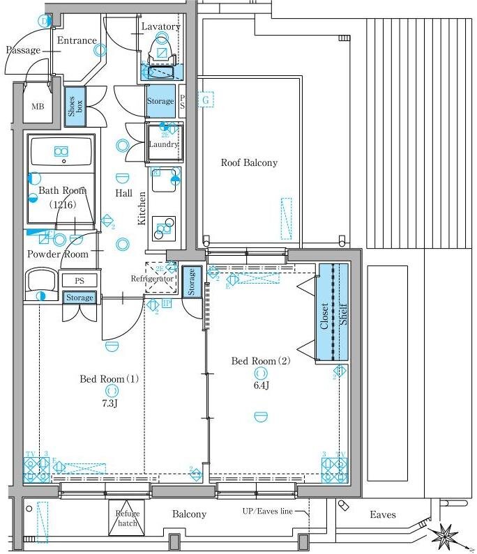
| 間取り・専有面積 | 2K / 39.6m²~ |
| 築年月 | 2009年03月 |
| 規模・構造 | 鉄筋コンクリート造 5階建て |
| 駐車場 | |
| 設備 | オートロック , 光ファイバー対応 , 宅配ボックス , 追焚き機能付 , 浴室換気乾燥機 , ディンプルキー , 独立洗面台 , 脱衣室 , バストイレ別 |
| 特徴 | ペット相談可 , 分譲賃貸 , 保証人不要 , インターネット無料 , 1DK以上 |
| 取引態様 | 媒介 |
| 自社物件番号 | C-8027 |
- ※当サイトは、建物に関するサイトとなっております。
条件等は、お部屋ごとに異なる場合がございますので、お部屋の事に関しては、必ず募集条件を直接ご確認ください - ※分譲賃貸マンションの場合、お部屋によって家賃・管理費・敷金・礼金など賃貸借契約に関する設定が様々です。各所有者様によって、設備・仕様・内装などが変更されている場合もございます。
- ※ペット飼育やSOHO利用の可否に関しては、建物の管理規約で可能になっていても、お部屋の所有者様によって禁止の場合もございますのでご注意下さい。
- 詳細はお電話、メール、LINEにてスタッフまでご相談下さい。
周辺環境
グラントゥルース大山幸町のお問い合わせ
最新の空室情報・詳細情報などお気軽にお問い合わせください。
- お問い合わせは24時間OK!
- 03-6279-2032
- 営業時間:10:00~20:00


































