この物件の特徴
この物件の設備
☆水商売OK☆保証人不要☆
★☆★建物の特徴★☆★
モニター付きオートロック/宅配ボックス/駐輪場/エレベーター/敷地内ゴミ置場/防犯カメラ/CATV/BS/CS/都市ガス/公共下水/外観タイル張り/光ファイバー/給湯/24時間ゴミ出し可能
★☆★お部屋の特徴★☆★
システムキッチン/バス・トイレ別/浴室換気乾燥暖房機/フローリング/エアコン/室内洗濯機置き場/シューズボックス/2口コンロ/バルコニー/温水洗浄便座/独立洗面台/カラーモニター付きインターホン/ダブルロックキー/クローゼット
(※上記は部屋により異なる場合がございます)
★☆★近くのお店★☆★
かに道楽270m/ドン・キホーテ290m
★☆★近くの道路★☆★
横浜駅根岸道路
LEXE(レグゼ)横濱関内は、2025年築の鉄筋コンクリート造・11階建てデザイナーズ賃貸マンションです。最寄り駅は京急・日ノ出町駅徒歩5分、ブルーライン・伊勢佐木長者町駅も利用可能な好アクセス。間取りは1R~1LDK(専有面積は約21.7~29.8m²)で、単身者やカップルに向いています。設備面ではオートロック・宅配ボックス・防犯カメラ・モニター付きインターホンを完備。さらにインターネットが無料、駐輪場やエレベーターなど生活に便利な施設もあり、ペット相談も可能です(ペット飼育時は追加負担あり)。また、関内・石川町・中華街・みなとみらいといった横浜の魅力的なエリアが生活圏に入っており、利便性と都市らしさを兼ね備えた物件です。
周辺地図
物件概要
| 物件種別 | 賃貸マンション |
|---|---|
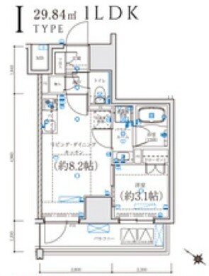
| 間取り・専有面積 | 1LDK / 29.84m²~ |
| 築年月 | 2025年07月 |
| 規模・構造 | 鉄筋コンクリート造 11階建て |
| 駐車場 | |
| 設備 | オートロック , 光ファイバー対応 , 宅配ボックス , 浴室換気乾燥機 , ウォシュレット , 玄関ダブルロック , 独立洗面台 , 脱衣室 , バストイレ別 |
| 特徴 | 敷金・礼金0 , ペット相談可 , 二人入居可 , 保証人不要 , 1DK以上 , 築浅 |
| 取引態様 | 媒介 |
| 自社物件番号 | C-8112 |
- ※当サイトは、建物に関するサイトとなっております。
条件等は、お部屋ごとに異なる場合がございますので、お部屋の事に関しては、必ず募集条件を直接ご確認ください - ※分譲賃貸マンションの場合、お部屋によって家賃・管理費・敷金・礼金など賃貸借契約に関する設定が様々です。各所有者様によって、設備・仕様・内装などが変更されている場合もございます。
- ※ペット飼育やSOHO利用の可否に関しては、建物の管理規約で可能になっていても、お部屋の所有者様によって禁止の場合もございますのでご注意下さい。
- 詳細はお電話、メール、LINEにてスタッフまでご相談下さい。
周辺環境
レグゼ横濱関内のお問い合わせ
最新の空室情報・詳細情報などお気軽にお問い合わせください。
- お問い合わせは24時間OK!
- 03-6279-2032
- 営業時間:10:00~20:00























