この物件の特徴
この物件の設備
★ペット可★浴室乾燥★
★☆★建物の特徴★☆★
モニター付きオートロック/宅配ボックス/エレベーター/防犯カメラ/ディンプルキー/敷地内ゴミ置き場/インターネット対応/CATV
★☆★お部屋の特徴★☆★
システムキッチン/バス・トイレ別/独立洗面台/室内洗濯機置/浴室乾燥機/温水洗浄便座/クローゼット/シューズボックス/照明/フローリング/バルコニー/エアコン/モニター付きインターホン/24時間換気システム/ペット飼育可
(※上記は部屋により異なる場合がございます)
★☆★近くのお店★☆★
ファミリーマート180m/アリオ200m
★☆★近くの道路★☆★
市役所通り
「ヴェルト川口並木」は、埼玉県川口市並木3丁目に佇む、落ち着いた住宅街に佇む分譲マンションです。
最寄り駅はJR京浜東北・根岸線「西川口」駅で、徒歩7分というアクセスの良さが魅力。
駅からの道のりは平坦で、毎日の通勤やお買い物もストレスなく行えます。
建物はしっかりとした鉄筋コンクリート造の地上7階建て。過去にはペット相談可で募集していた実績もあり、ライフスタイルに合わせた選択肢が広がります
共用設備にはオートロックや防犯カメラを完備しており、セキュリティ面でも安心してお住まいいただけます。
CATVやインターネットにも対応しているため、リモートワークや動画視聴などのオンライン環境にも不自由しません。また、24時間いつでもゴミ出し可能な点も忙しい方に嬉しいポイントです。
周辺にはコモディイイダや東武ストアなどの生活施設が充実しており、食材の買い出しや日用品の購入にも困りません。飲食店やドラッグストアなども徒歩圏に揃っているため、暮らしやすい環境が整っています。
静けさと利便性がバランス良く共存した「ヴェルト川口並木」。単身の方からお二人暮らしまで、安心で快適な生活を求める方におすすめできる住まいです。
周辺地図
物件概要
| 物件種別 | 賃貸マンション |
|---|---|
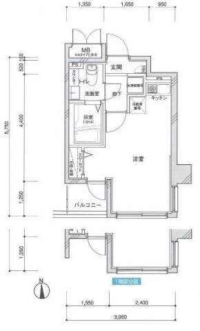
| 間取り・専有面積 | 1K / 21.84m²~ |
| 築年月 | 2008年02月 |
| 規模・構造 | 鉄筋コンクリート造 11階建て |
| 駐車場 | |
| 設備 | オートロック , 光ファイバー対応 , 宅配ボックス , 浴室換気乾燥機 , ウォシュレット , 玄関ダブルロック , ディンプルキー , 独立洗面台 , バストイレ別 |
| 特徴 | 敷金・礼金0 , ペット相談可 , 分譲賃貸 , 保証人不要 |
| 取引態様 | 媒介 |
| 自社物件番号 | MR-373 |
- ※当サイトは、建物に関するサイトとなっております。
条件等は、お部屋ごとに異なる場合がございますので、お部屋の事に関しては、必ず募集条件を直接ご確認ください - ※分譲賃貸マンションの場合、お部屋によって家賃・管理費・敷金・礼金など賃貸借契約に関する設定が様々です。各所有者様によって、設備・仕様・内装などが変更されている場合もございます。
- ※ペット飼育やSOHO利用の可否に関しては、建物の管理規約で可能になっていても、お部屋の所有者様によって禁止の場合もございますのでご注意下さい。
- 詳細はお電話、メール、LINEにてスタッフまでご相談下さい。
周辺環境
ヴェルト川口並木のお問い合わせ
最新の空室情報・詳細情報などお気軽にお問い合わせください。
- お問い合わせは24時間OK!
- 03-6279-2032
- 営業時間:10:00~20:00
























