この物件の特徴
この物件の設備
★ペット相談可★インターネット無料★
★☆★建物の特徴★☆★
モニター付きオートロック/宅配ボックス/エレベーター/防犯カメラ/ディンプルキー/ダブルロック/敷地内ゴミ置き場/インターネット対応/BS/CS/駐輪場/分譲/プロパンガス
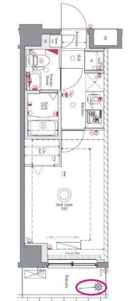
★☆★お部屋の特徴★☆★
システムキッチン/グリル付き2口ガスコンロ/バス・トイレ別/独立洗面化粧台/脱衣所/室内洗濯機置/温水洗浄便座/クローゼット/シューズボックス/照明/フローリング/バルコニー/エアコン/モニター付きインターホン/24時間換気システム/インターネット無料/ペット相談可
(※上記は部屋により異なる場合がございます)
★☆★近くのお店★☆★
ローソン160m/アコレ100m
★☆★近くの道路★☆★
並北通り
「西川口駅」から徒歩5分という利便性の高い立地に佇む「REXZY西川口AZ IV」は、埼玉県川口市西川口1丁目の落ち着いた住環境に佇む、、都心方面へのアクセスもスムーズな人気のエリアです。
建物は鉄筋コンクリート造9階建てで、耐久性や遮音性に優れており、単身者の方でも安心して暮らせる造りとなっています。
共用設備としてCATV、インターネット接続対応など、現代の生活に欠かせないインフラが整備されています。また、管理人巡回により日々の管理体制も整っているため、初めての一人暮らしの方でも安心してお住まいいただけます。
周辺環境には東武ストアや複数のコンビニ、飲食店など日常生活に役立つ施設が充実。駅前らしい活気と便利さを享受しながら、快適な暮らしを実現できる住環境が整っています。
「REXZY西川口AZ IV」は、利便性・建物性能・生活環境がバランス良く揃った、暮らしやすさを実感できるおすすめの物件です。
周辺地図
物件概要
| 物件種別 | 賃貸マンション |
|---|---|
| 間取り・専有面積 | 1K / 21.29m²~ |
| 築年月 | 2020年01月 |
| 規模・構造 | 鉄筋コンクリート造 9階建て |
| 駐車場 | |
| 設備 | オートロック , 光ファイバー対応 , 宅配ボックス , 浴室換気乾燥機 , ウォシュレット , シャンプードレッサー , 玄関ダブルロック , ディンプルキー , 独立洗面台 , 脱衣室 , バストイレ別 |
| 特徴 | 敷金・礼金0 , ペット相談可 , 分譲賃貸 , 保証人不要 , インターネット無料 , レジデンス |
| 取引態様 | 媒介 |
| 自社物件番号 | MR-376 |
- ※当サイトは、建物に関するサイトとなっております。
条件等は、お部屋ごとに異なる場合がございますので、お部屋の事に関しては、必ず募集条件を直接ご確認ください - ※分譲賃貸マンションの場合、お部屋によって家賃・管理費・敷金・礼金など賃貸借契約に関する設定が様々です。各所有者様によって、設備・仕様・内装などが変更されている場合もございます。
- ※ペット飼育やSOHO利用の可否に関しては、建物の管理規約で可能になっていても、お部屋の所有者様によって禁止の場合もございますのでご注意下さい。
- 詳細はお電話、メール、LINEにてスタッフまでご相談下さい。
周辺環境
REXZY西川口AZⅣのお問い合わせ
最新の空室情報・詳細情報などお気軽にお問い合わせください。
- お問い合わせは24時間OK!
- 03-6279-2032
- 営業時間:10:00~20:00






















