この物件の特徴
この物件の設備
★分譲賃貸★水商売可★独立洗面台★
★☆★建物の特徴★☆★
モニター付きオートロック/宅配ボックス/防犯カメラ/ゴミ置き場/CS/BS/CATVアンテナ/インターネット無料/光ファイバー/ダブルロック/ディンプルキー
★☆★お部屋の特徴★☆★
システムキッチン/3口ガスコンロ/バス・トイレ別/独立洗面台/脱衣所/洗濯機室内/浴室乾燥機/温水洗浄便座/クローゼット/シューズボックス/照明/フローリング/バルコニー/モニター付きインターホン/24時間換気システム/追い焚き/ペット可
(※上記は部屋により異なる場合がございます)
★☆★近くのお店★☆★
まいばすけっと86m/セブンイレブン240m
★☆★近くの道路★☆★
川の手通り
足立区エリアからは高級デザイナーズマンション『ソレーユ・綾瀬』のご紹介です。
JR常磐線『綾瀬駅』徒歩8分、千代田線『綾瀬駅』徒歩8分と複数路線が利用可能。
周辺環境もコンビニやスーパが徒歩5分以内にある為、生活しやすい環境となっております。
設備面も充実しており、独立洗面台、宅配ボックスなど生活に欠かせない設備が完備されております。
キャバクラ・ナイトワーク・夜職の審査も柔軟に対応可能なペット可のお部屋となっておりますので早い者勝ちです。
周辺地図
物件概要
| 物件種別 | 賃貸マンション |
|---|---|
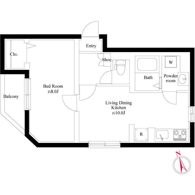
| 間取り・専有面積 | 1LDK / 43.46m²~ |
| 築年月 | 2022年03月 |
| 規模・構造 | 鉄筋コンクリート造 5階建て |
| 駐車場 | |
| 設備 | オートロック , 光ファイバー対応 , 宅配ボックス , 追焚き機能付 , 浴室換気乾燥機 , ウォシュレット , 玄関ダブルロック , ディンプルキー , 独立洗面台 , 脱衣室 , バストイレ別 |
| 特徴 | 敷金・礼金0 , デザイナーズ , ペット相談可 , 二人入居可 , 保証人不要 , インターネット無料 , 1DK以上 |
| 取引態様 | 媒介 |
| 自社物件番号 | C-8163 |
- ※当サイトは、建物に関するサイトとなっております。
条件等は、お部屋ごとに異なる場合がございますので、お部屋の事に関しては、必ず募集条件を直接ご確認ください - ※分譲賃貸マンションの場合、お部屋によって家賃・管理費・敷金・礼金など賃貸借契約に関する設定が様々です。各所有者様によって、設備・仕様・内装などが変更されている場合もございます。
- ※ペット飼育やSOHO利用の可否に関しては、建物の管理規約で可能になっていても、お部屋の所有者様によって禁止の場合もございますのでご注意下さい。
- 詳細はお電話、メール、LINEにてスタッフまでご相談下さい。
周辺環境
ソレーユ・綾瀬のお問い合わせ
最新の空室情報・詳細情報などお気軽にお問い合わせください。
- お問い合わせは24時間OK!
- 03-6279-2032
- 営業時間:10:00~20:00






























