この物件の特徴
この物件の設備
★水商売OK★保証人不要★ネット無料★
★☆★建物の特徴★☆★
モニター付きオートロック/宅配ボックス/エレベーター/防犯カメラ/ディンプルキー/敷地内ゴミ置き場/BS/CS/インターネット無料
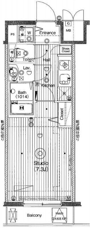
★☆★お部屋の特徴★☆★
システムキッチン/バス・トイレ別/洗濯機室内/独立洗面台/脱衣所/浴室乾燥機/温水洗浄便座/クローゼット/シューズボックス/照明/フローリング/バルコニー/エアコン/モニター付きインターホン/24時間換気システム
(※上記は部屋により異なる場合がございます)
★☆★近くのお店★☆★
まいばすけっと400m/スシロー600m
★☆★近くの道路★☆★
環状2号線
新横浜エリアからは、高級分譲マンション「グランドガーラ新横浜サウス」のご紹介です。
2010年9月築、地上11階建て鉄筋コンクリート(RC造)マンションです。
最寄り駅である「新横浜駅」までは徒歩9分で利用可能。
JR横浜線・横浜市営地下鉄ブルーライン線がそれぞれ使用できるのでアクセス面に優れております。
建物の共用部に関しては、駐輪場やメールボックス、宅配ボックス、オートロックなど、忙しい方や一人暮らしの方にとって嬉しい設備がご用意されております。
ペット飼育相談可能ですので、ペットとの素敵なひとときをお楽しみいただけます。
周辺地図
物件概要
| 物件種別 | 賃貸マンション |
|---|---|
| 間取り・専有面積 | 1R / 23.68m²~ |
| 築年月 | 2010年09月 |
| 規模・構造 | 鉄筋コンクリート造 11階建て |
| 駐車場 | |
| 設備 | オートロック , 光ファイバー対応 , 宅配ボックス , 浴室換気乾燥機 , ウォシュレット , ディンプルキー , 独立洗面台 , 脱衣室 , バストイレ別 |
| 特徴 | ペット相談可 , 分譲賃貸 , 保証人不要 , インターネット無料 , レジデンス |
| 取引態様 | 媒介 |
| 自社物件番号 | C-8180 |
- ※当サイトは、建物に関するサイトとなっております。
条件等は、お部屋ごとに異なる場合がございますので、お部屋の事に関しては、必ず募集条件を直接ご確認ください - ※分譲賃貸マンションの場合、お部屋によって家賃・管理費・敷金・礼金など賃貸借契約に関する設定が様々です。各所有者様によって、設備・仕様・内装などが変更されている場合もございます。
- ※ペット飼育やSOHO利用の可否に関しては、建物の管理規約で可能になっていても、お部屋の所有者様によって禁止の場合もございますのでご注意下さい。
- 詳細はお電話、メール、LINEにてスタッフまでご相談下さい。
周辺環境
グランドガーラ新横浜サウスのお問い合わせ
最新の空室情報・詳細情報などお気軽にお問い合わせください。
- お問い合わせは24時間OK!
- 03-6279-2032
- 営業時間:10:00~20:00




























