この物件の特徴
この物件の設備
★オートロック★宅配ボックス★
★☆★建物の特徴★☆★
モニター付きオートロック/宅配ボックス/エレベーター/防犯カメラ/ディンプルキー/ゴミ置き場/CATVアンテナ
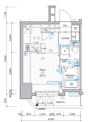
★☆★お部屋の特徴★☆★
システムキッチン/バス・トイレ別/独立洗面台/脱衣所/洗濯機室内/温水洗浄便座/クローゼット/シューズボックス/照明/フローリング/バルコニー/エアコン/モニター付きインターホン/24時間換気システム
(※上記は部屋により異なる場合がございます)
★☆★近くのお店★☆★
ローソン50m/セブンイレブン80m
★☆★近くの道路★☆★
藤棚浦舟通り
神奈川県横浜市中区末吉町4丁目エリアに建つ賃貸マンション「SYNEX横濱阪東橋」のご紹介です。
2014年1月築、地上11階建ての鉄筋コンクリート造マンションです。
オートロックやモニター付インターホンがあるので防犯面も安心です。
住戸には、温水洗浄便座や収納、エアコン、システムキッチン、独立洗面台など生活に便利な設備が完備されています。
共用部には宅配ボックスも完備で不在時でも24時間お荷物のお受け取りが可能なので、お忙しい方にもおすすめです。
周辺地図
物件概要
| 物件種別 | 賃貸マンション |
|---|---|
| 間取り・専有面積 | 1R / 20.02m²~ |
| 築年月 | 2014年01月 |
| 規模・構造 | 鉄筋コンクリート造 11階建て |
| 駐車場 | |
| 設備 | オートロック , 浴室換気乾燥機 , ウォシュレット , ディンプルキー , 独立洗面台 , 脱衣室 , バストイレ別 |
| 特徴 | 分譲賃貸 , 保証人不要 |
| 取引態様 | 媒介 |
| 自社物件番号 | MK-776 |
- ※当サイトは、建物に関するサイトとなっております。
条件等は、お部屋ごとに異なる場合がございますので、お部屋の事に関しては、必ず募集条件を直接ご確認ください - ※分譲賃貸マンションの場合、お部屋によって家賃・管理費・敷金・礼金など賃貸借契約に関する設定が様々です。各所有者様によって、設備・仕様・内装などが変更されている場合もございます。
- ※ペット飼育やSOHO利用の可否に関しては、建物の管理規約で可能になっていても、お部屋の所有者様によって禁止の場合もございますのでご注意下さい。
- 詳細はお電話、メール、LINEにてスタッフまでご相談下さい。
周辺環境
SYNEX横濱阪東橋のお問い合わせ
最新の空室情報・詳細情報などお気軽にお問い合わせください。
- お問い合わせは24時間OK!
- 03-6279-2032
- 営業時間:10:00~20:00
































