この物件の特徴
この物件の設備
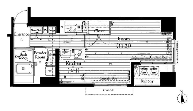
☆バス・トイレ別☆独立洗面台☆分譲☆
★☆★建物の特徴★☆★
モニター付きオートロック/宅配ボックス/エレベーター/防犯カメラ/ディンプルキー/ダブルロック/敷地内ゴミ置き場/CS/BS//CATV/都市ガス/分譲
★☆★お部屋の特徴★☆★
システムキッチン/バス・トイレ別/独立洗面台/脱衣所/洗濯機室内/浴室乾燥機/温水洗浄便座/クローゼット/シューズボックス/照明/フローリング/バルコニー/エアコン/モニター付きインターホン/24時間換気システム
(※上記は部屋により異なる場合がございます)
★☆★近くのお店★☆★
まいばすけっと160m/ローソン100m/
★☆★近くの道路★☆★
浅草通り
レガスタ浅草は、台東区浅草エリアに建つ賃貸マンションです。交通アクセスが良好な立地で、日々の通勤・通学はもちろん、休日の外出やショッピングにも便利な環境が整っています。駅近の利便性と、落ち着いた住環境が両立した魅力ある物件です。
建物はきれいに管理されており、オートロックやモニター付きインターフォン、防犯カメラなどの充実したセキュリティ設備により、安心感のある暮らしを提供します。また、共用部には宅配ボックスなどの便利な設備も備わっており、不在時の荷物受け取りもスムーズです。
住戸の間取りは1K~1LDKを中心に展開しており、単身者からDINKSまで幅広い層に対応しています。室内は使い勝手を重視した設計で、システムキッチン、独立洗面台、浴室乾燥機などの設備が整っており、快適な生活空間を実現します。※物件により設備仕様は異なる場合があります。
周辺にはスーパー・コンビニ・ドラッグストアなどの生活利便施設が充実しており、日常の買い物にも困りません。また、浅草観光の中心地や飲食店、カフェなども徒歩圏内にあり、休日の楽しみ方が広がるエリアです。すぐ近くには隅田川や浅草寺などの観光スポットもあり、散策やリフレッシュにも適しています。
周辺地図
物件概要
| 物件種別 | 賃貸マンション |
|---|---|
| 間取り・専有面積 | 1K / 39.48m²~ |
| 築年月 | 2007年09月 |
| 規模・構造 | 鉄筋コンクリート造 11階建て |
| 駐車場 | |
| 設備 | オートロック , 宅配ボックス , 浴室換気乾燥機 , ウォシュレット , 玄関ダブルロック , ディンプルキー , 独立洗面台 , 脱衣室 , バストイレ別 |
| 特徴 | 分譲賃貸 , 保証人不要 |
| 取引態様 | 媒介 |
| 自社物件番号 | MA-718 |
- ※当サイトは、建物に関するサイトとなっております。
条件等は、お部屋ごとに異なる場合がございますので、お部屋の事に関しては、必ず募集条件を直接ご確認ください - ※分譲賃貸マンションの場合、お部屋によって家賃・管理費・敷金・礼金など賃貸借契約に関する設定が様々です。各所有者様によって、設備・仕様・内装などが変更されている場合もございます。
- ※ペット飼育やSOHO利用の可否に関しては、建物の管理規約で可能になっていても、お部屋の所有者様によって禁止の場合もございますのでご注意下さい。
- 詳細はお電話、メール、LINEにてスタッフまでご相談下さい。
周辺環境
レガスタ浅草のお問い合わせ
最新の空室情報・詳細情報などお気軽にお問い合わせください。
- お問い合わせは24時間OK!
- 03-6279-2032
- 営業時間:10:00~20:00






















