この物件の特徴
この物件の設備
★ペット可★インターネット無料★
★☆★建物の特徴★☆★
モニター付きオートロック/宅配ボックス/エレベーター/ディンプルキー/敷地内ゴミ置き場/インターネット無料/都市ガス
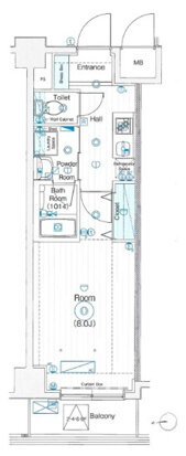
★☆★お部屋の特徴★☆★
システムキッチン/バス・トイレ別/独立洗面台/脱衣所/室内洗濯機/浴室乾燥機/温水洗浄便座/クローゼット/シューズボックス/照明/フローリング/バルコニー/エアコン/モニター付きインターホン/24時間換気システム
(※上記は部屋により異なる場合がございます)
★☆★近くのお店★☆★
セブンイレブン130/スーパーマーケット210m/
★☆★近くの道路★☆★
産業道路
マキシヴ川口並木は、埼玉県川口市並木4丁目に佇む、都市の利便性と住みやすさを兼ね備えたマンションです。
JR京浜東北・根岸線「西川口駅」から徒歩8分とアクセスも良好で、通勤・通学やショッピングにも便利な立地となっています。
設備面では、BS・CS対応やインターネット接続可などの快適設備に加え、オートロック・防犯カメラなどセキュリティ面も充実。安心してお住まいいただける体制が整っています。
近隣にはファミリーマートやマツモトキヨシなど日常使いしやすい施設が揃っており、生活利便性も良好。
暮らしやすさと安心感を兼ね備えた、おすすめのマンションです。
周辺地図
物件概要
| 物件種別 | 賃貸マンション |
|---|---|
| 間取り・専有面積 | 1K / 25.87m²~ |
| 築年月 | 2023年09月 |
| 規模・構造 | 鉄筋コンクリート造 8階建て |
| 駐車場 | あり |
| 設備 | オートロック , 光ファイバー対応 , 宅配ボックス , 浴室換気乾燥機 , ウォシュレット , 玄関ダブルロック , ディンプルキー , 独立洗面台 , 脱衣室 , バストイレ別 |
| 特徴 | デザイナーズ , ペット相談可 , 分譲賃貸 , 保証人不要 , インターネット無料 , ホワイトフローリング , レジデンス , 築浅 |
| 取引態様 | 媒介 |
| 自社物件番号 | MR-412 |
- ※当サイトは、建物に関するサイトとなっております。
条件等は、お部屋ごとに異なる場合がございますので、お部屋の事に関しては、必ず募集条件を直接ご確認ください - ※分譲賃貸マンションの場合、お部屋によって家賃・管理費・敷金・礼金など賃貸借契約に関する設定が様々です。各所有者様によって、設備・仕様・内装などが変更されている場合もございます。
- ※ペット飼育やSOHO利用の可否に関しては、建物の管理規約で可能になっていても、お部屋の所有者様によって禁止の場合もございますのでご注意下さい。
- 詳細はお電話、メール、LINEにてスタッフまでご相談下さい。
周辺環境
マキシヴ川口並木のお問い合わせ
最新の空室情報・詳細情報などお気軽にお問い合わせください。
- お問い合わせは24時間OK!
- 03-6279-2032
- 営業時間:10:00~20:00































