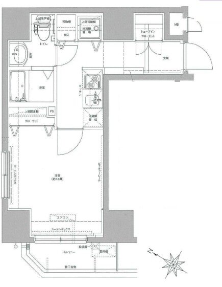
この物件の特徴
この物件の設備
★独立洗面台★温水洗浄便座★
★☆★建物の特徴★☆★
モニター付きオートロック/宅配ボックス/エレベーター/防犯カメラ/ディンプルキー/ゴミ置き場/駐輪場
★☆★お部屋の特徴★☆★
システムキッチン/バス・トイレ別/独立洗面台/脱衣所/洗濯機室内/浴室乾燥機/温水洗浄便座/クローゼット/シューズボックス/照明/フローリング/バルコニー/エアコン/モニター付きインターホン/24時間換気システム
(※上記は部屋により異なる場合がございます)
★☆★近くのお店★☆★
ローソン80m/まいばすけっと160m
★☆★近くの道路★☆★
藤棚浦舟通り
神奈川県横浜市南区万世町1丁目に位置する「ドルチェ横浜関内」は、落ち着いた住環境と都市機能を兼ね備えた賃貸マンションです。最寄りの横浜市営地下鉄ブルーライン「伊勢佐木長者町」駅から徒歩11分。関内・伊勢佐木町エリアも生活圏内に収まり、通勤やプライベートの移動にも便利な立地が魅力です。
建物にはオートロックシステムを採用しており、外出時間が不規則になりがちな方でも安心してお住まいいただけます。また、24時間利用可能な宅配ボックスを完備しているため、日中の受け取りが難しい方でも荷物の受け取りに困りません。
室内設備も充実しており、バス・トイレ別はもちろん、雨の日や深夜帯の洗濯にも重宝する浴室乾燥機、身支度がしやすい独立洗面台、快適性を高める温水洗浄便座など、日々の暮らしをサポートする設備が整っています。清潔感と使い勝手を重視した室内空間は、一人暮らしの方にも快適な住み心地を提供します。
また本物件は、キャバクラ勤務・ナイトワーク・夜職の方の入居審査にも柔軟に対応可能です。職業面でお部屋探しに不安を感じている方も、ぜひ一度ご相談ください。都心アクセスと安心の設備環境を両立した「ドルチェ横浜関内」で、自分らしいライフスタイルを実現してみてはいかがでしょうか。
周辺地図
物件概要
| 物件種別 | 賃貸マンション |
|---|---|
| 間取り・専有面積 | 1K / 28.23m²~ |
| 築年月 | 2009年03月 |
| 規模・構造 | 鉄筋コンクリート造 10階建て |
| 駐車場 | |
| 設備 | オートロック , 光ファイバー対応 , 宅配ボックス , 浴室換気乾燥機 , ウォシュレット , 玄関ダブルロック , ディンプルキー , 独立洗面台 , 脱衣室 , バストイレ別 |
| 特徴 | 分譲賃貸 , 保証人不要 |
| 取引態様 | 媒介 |
| 自社物件番号 | C-8566 |
- ※当サイトは、建物に関するサイトとなっております。
条件等は、お部屋ごとに異なる場合がございますので、お部屋の事に関しては、必ず募集条件を直接ご確認ください - ※分譲賃貸マンションの場合、お部屋によって家賃・管理費・敷金・礼金など賃貸借契約に関する設定が様々です。各所有者様によって、設備・仕様・内装などが変更されている場合もございます。
- ※ペット飼育やSOHO利用の可否に関しては、建物の管理規約で可能になっていても、お部屋の所有者様によって禁止の場合もございますのでご注意下さい。
- 詳細はお電話、メール、LINEにてスタッフまでご相談下さい。
周辺環境
ドルチェ横浜関内のお問い合わせ
最新の空室情報・詳細情報などお気軽にお問い合わせください。
- お問い合わせは24時間OK!
- 03-6279-2032
- 営業時間:10:00~20:00






















